House 27, Apan Housing Laboratory

Project Details

Project Name
House 27, Apan Housing Laboratory
Location
Apan Mexico
Project Scope
New Construction
Shared By
Madeleine D’Angelo
Project Status
Built

Project Description

This project is part of the Apan Housing Laboratory, which is featured in the August 2019 issue of ARCHITECT.

FROM THE ARCHITECTS:

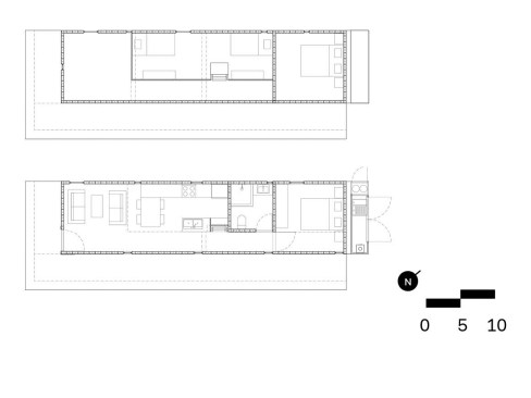
This project generates pieces—concrete columns and beams, brick infill, full-height windows and doors, shed roofs, etc.—designed to transform the size and materiality of low-income housing while maintaining a strong relationship with the surrounding environment. All spaces are naturally ventilated, the building mass oriented to the southeast to maximize passive solar effects. Rainwater will be collect from the roof and gray water is biofiltered for reuse in on-site irrigation (of family gardens, shade trees, etc.). Repetition of a simple reinforced-concrete frame allows for horizontal expansion in both parallel and perpendicular directions. These double-height volumetric modules offer spacious living and sleeping spaces, including a semi-enclosed sleeping loft.

Notes: Defining interior programming and unit growth, this project’s primary element is its square, shedroofed module. Linearly aggregating these volumetric modules, the project appears as half of a vernacular house. (Modules allow for free rotation during aggregation, and need not grow along a line.) Absent any perimeter wall and glazed along both sides of its length, the project appears as an object in the landscape.

Project Details:
State: Tamaulipas
Municipality: González
Climate: Warm Dry
Constructed Surface: 43.70 M2
Floor-to-ceiling height: 2.50 M
Roof Type: Shed
Orientation: N–S
Growth Option(s): Horizontal
Wall Type: CMU Partition Wall Block (7 x 14 x 28)
Floor Type: Concrete Slab (Polished)
Structure: Reinforced Concrete Columns, Beams (3m x 3m Structural Module); Reinforced Concrete Foundation Roofing: Wood Beams with Galvanized-metal Sheeting; Regional Palms
Details: MDF Doors (6 mm) with Natural Varnish; MDF Frames (10 mm); Metal-framed windows with Clear Glass Finishes: —

Project Credits:
Project: Apan Housing Laboratory
Architects: Gaeta-Springall Arquitectos

Upcoming Events

  • Design Smarter: Leveraging GIS, BIM, and Open Data for Better Site Selection & Collaboration

    Live Webinar

    Register for Free
  • Slate Reimagined: The Surprising Advantages of Slate Rainscreen Cladding

    Webinar

    Register Now
  • The State of Residential Design Today: Innovations and Insights from RADA-Winning Architects

    Webinar

    Register for Free
All Events