House 25, Apan Housing Laboratory

Project Details

Project Name
House 25, Apan Housing Laboratory
Location
Apan Mexico
Project Scope
New Construction
Shared By
Madeleine D’Angelo
Project Status
Built

Project Description

This project is part of the Apan Housing Laboratory, which is featured in the August 2019 issue of ARCHITECT.

FROM THE ARCHITECTS:

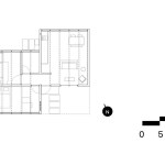
Formed from the union of two 6.0×4.4-meter volumetric modules, the proposed housing unit intends to demonstrate and develop the use of local, vernacular building materials and systems while maintaining sufficient simplicity to allow for inhabitant-initiated construction. (All constructive elements maintain their commercial dimensions, to minimize waste, but are nonetheless novel in their re-presentation of a flexibility in application and pleasant materiality.) The house foregrounds passive means of environmental control including: burying portions of its facade in areas where interior light and building entry are demanded less; adopting a northsouth building orientation and abundant openings to prevailing winds, for controlled lighting and cross-ventilation; and the inclusion of both interior and on-site agriculture as well as water-storage.

Notes: The primary elements of this project are its local building materials and systems—particularly the brick, which is simply but varyingly employed to create retaining walls, solid and porous exterior walls, interior partitions, and vaulted roof modules. Buried at two of its four exterior corners, the home pulls away from its context, less social and seemingly more of an object in the landscape than on it. The house has no clear front or back.

Project Details:
State: Aguascalientes
Municipality: Rincón de Romos
Climate: Temperate Dry House
Price: —
Constructed Surface: 47.70 M2
Floor-to-ceiling height: 2.89 M
Roof Type: Shed/Vault
Orientation: N–S
Growth Option(s): Horizontal
Wall Type: Ceramic Brick
Floor Type: Concrete Slab
Structure: Concrete Foundation; Load-Bearing Brick Retaining Wall
Roofing: Reinforced Concrete and Brick Vault
Details: Wood Window Frames
Finishes: Untreated/Natural Brick

Project Credits:
Project: Apan Housing Laboratory
Architects: Rojkind Arquitectos

Upcoming Events

  • Design Smarter: Leveraging GIS, BIM, and Open Data for Better Site Selection & Collaboration

    Live Webinar

    Register for Free
  • Slate Reimagined: The Surprising Advantages of Slate Rainscreen Cladding

    Webinar

    Register Now
  • The State of Residential Design Today: Innovations and Insights from RADA-Winning Architects

    Webinar

    Register for Free
All Events