House 24, Apan Housing Laboratory

Project Details

Project Name
House 24, Apan Housing Laboratory
Location
ApanMexico
Architect
Agraz Arquitectos
Project Scope
New Construction
Shared By
Madeleine D’Angelo
Project Status
Built

Project Description

This project is part of the Apan Housing Laboratory, which is featured in the August 2019 issue of ARCHITECT.

FROM THE ARCHITECTS:

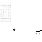
This housing unit is organized around three walls running its length, intended to reduce the cost and duration of construction by diminishing overall structure, to improve environmental performance by further insulating living spaces from public space, changes in exterior temperature, noise, etc. Closely spaced, two of these walls contain wet areas and building services. The home’s construction and organization are in two parts: block one (initial phase) and block two (expansion phase). Structural walls extend into the space fronting and between these two program blocks, creating private patios.

Notes: The primary elements of this project are its three walls, whose clear and efficient structural logic creates a simple clear-span interior. All growth occurs through either the simple repetition/duplication of the original unit or through the addition of a second story. The solidity of structural walls (or primary elements) suggests an infill site and produces an inward focus. Vaulted ceiling elements translate the simplicity and efficiency of the building’s structural system into insulated, generously detailed interiors.

Project Details:
State: Jalisco
Municipality: Autlán de Navarro
Climate: Warm Semihumid
Constructed Surface: 42.84 M2
Floor-to-ceiling height: 2.70 M
Roof Type: Flat
Orientation: N–S Growth
Option(s): Vertical
Wall Type: Brick (Paint/Stucco)
Floor Type: Concrete Slab (Terrazzo)
Structure: Reinforced Concrete
Foundation Roofing: Metal Sheeting over Interior Vaults
Details: —
Finishes: —

Project Credits:
Project: Apan Housing Laboratory
Architects: Agraz Arquitectos

Upcoming Events

  • Design Smarter: Leveraging GIS, BIM, and Open Data for Better Site Selection & Collaboration

    Live Webinar

    Register for Free
  • Slate Reimagined: The Surprising Advantages of Slate Rainscreen Cladding

    Webinar

    Register Now
  • The State of Residential Design Today: Innovations and Insights from RADA-Winning Architects

    Webinar

    Register for Free
All Events