House 23, Apan Housing Laboratory

Project Details

Project Name
House 23, Apan Housing Laboratory
Location
ApanMexico
Architect
Productora
Project Scope
New Construction
Shared By
Madeleine D’Angelo
Project Status
Built

Project Description

This project is part of the Apan Housing Laboratory, which is featured in the August 2019 issue of ARCHITECT.

FROM THE ARCHITECTS:

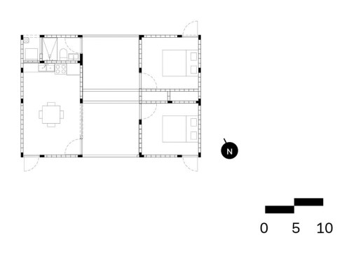
The proposed housing scheme is organized around three corridor axes— one private, one public, and one service—that connect varying programs and lend a clear structural and spatial order to modular expansion. Excepting a building volume containing all bath and kitchen services (and attendant systems), all spaces are organized is such a way as to demand no particular programming. All spaces are independently accessible and need not rely on other spaces. And all spaces, constructed in reinforced-concrete and load-bearing brick, can house any program: living, commerce, production, etc. Prevailing winds from the northeast are translated into a northsouth building orientation. Anticipating a contextual change from rural to urban, the proposed scheme develops an adaptable housing unit reduced in dimension but not in function or quality of life.

Notes: Most significant to the project’s character is its central, vault-topped courtyard. Whether open to the exterior or enclosed, this space produces a clear front for the house and establishes the primary axis around which its tripartite plan is organized. (All circulation between a volume containing services and a volume containing other enclosed programming must cross this central court.) Any unit growth occurs through either the infill of an open central courtyard or the continuation of this original tripartite rhythm in new construction.

Project Details:
State: Guanajuato
Municipality: San Francisco del Rincón
Climate: Temperate Dry
House Price: 218,568.48
Constructed Surface: 61.72 M2
Floor-to-ceiling height: 2.20 M
Roof Type: Flat; Vault
Orientation: N–S
Growth Option(s): Horizontal; Interior
Wall Type: Red Brick Partition
Floor Type: Concrete Slab (Polished Terrazzo)
Structure: Reinforced Concrete Slab (.175-M Off Ground); Reinforced Masonry Load bearing Walls (3.2-M Grid) Roofing: Joist and Beam; Reinforced Concrete Vaults
Details: —
Finishes: Red Brick; White-painted Brick Walls (exterior); Fine, Flat Plaster Interior Walls; Exposed Concrete Structure; Terrazzo

Project Credits:
Project: Apan Housing Laboratory
Architects: Productora

Upcoming Events

  • Design Smarter: Leveraging GIS, BIM, and Open Data for Better Site Selection & Collaboration

    Live Webinar

    Register for Free
  • Slate Reimagined: The Surprising Advantages of Slate Rainscreen Cladding

    Webinar

    Register Now
  • The State of Residential Design Today: Innovations and Insights from RADA-Winning Architects

    Webinar

    Register for Free
All Events