House 21, Apan Housing Laboratory

Project Details

Project Name
House 21, Apan Housing Laboratory
Location
Apan Mexico
Project Scope
New Construction
Shared By
Madeleine D’Angelo
Project Status
Built

Project Description

This project is part of the Apan Housing Laboratory, which is featured in the August 2019 issue of ARCHITECT.

FROM THE ARCHITECTS:

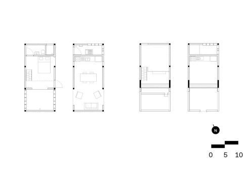
The Productive House (Casa Productiva) consists of a house formed by a basic, 35-square-meter module with the ability to flexibly and progressively add additional modules, all articulated through patios. Patio dimensions are variable, determined according to the requirements of inhabitants and the desired proximity between multiple unit modules. (This separation of housing units through courtyards provides both cross-ventilation and abundant natural light.) Interior loft spaces house water and gas tanks, with the bathroom and kitchen located on the ground floor, next to living and dining spaces. This efficient concentration of facilities allows the organic arrangement of the dwelling and the flexible addition of modules according to future needs.

Notes: The primary element in the project, from which all interior organization results, is its sloped shed roof. Sloping in either identical or opposite directions, when grown through parallel repetition/duplication these roofs produce a coherent multiplicity of formal aggregations. The use of sustainable bale construction and the unusually thick walls that result are unique to this project. Absent perimeter walls, this proposal is open to its urban context but directs site circulation through quasiprivate courtyards in parallel, public paths perpendicular to units.

Project Details:
State: Querétaro
Municipality: San Juan del Río
Climate: Temperate Dry House
Price: 214,742.08
Constructed Surface: 55.08 M2
Floor-to-ceiling height: 2.40–3.50 M
Roof Type: Shed
Orientation: N–S–E–W
Growth Option(s): Horizontal; independent
Title: Productive House
Wall Type: CMU Block
Floor Type: Concrete Slab (Brick Inlay)
Structure: Concrete Foundation and Columns
Roofing: Wood Frame Sheathed with Metal; or, Concrete
Details: Solar Panel Finishes: Clay Walls

Project Credits:
Project: Productive House, Apan Housing Laboratory
Architects: Fernanda Canales

Upcoming Events

  • Design Smarter: Leveraging GIS, BIM, and Open Data for Better Site Selection & Collaboration

    Live Webinar

    Register for Free
  • Slate Reimagined: The Surprising Advantages of Slate Rainscreen Cladding

    Webinar

    Register Now
  • The State of Residential Design Today: Innovations and Insights from RADA-Winning Architects

    Webinar

    Register for Free
All Events