House 15, Apan Housing Laboratory

Project Details

Project Name
House 15, Apan Housing Laboratory
Location
ApanMexico
Architect
BGP Arquitectura
Project Scope
New Construction
Shared By
Madeleine D’Angelo
Project Status
Built

Project Description

This project is part of the Apan Housing Laboratory, which is featured in the August 2019 issue of ARCHITECT.

FROM THE ARCHITECTS:

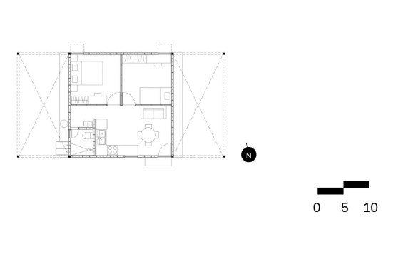
Designed with future expansion in mind, this housing unit understands that one cannot limit or condition the characteristics and materials of this expansion. Acknowledging prevailing trade winds that blow northeast to southwest in the summer and east to west in the winter, the house orients its entry to the north and closes off its east and west elevations. (Doors and windows at the house’s corners allow for diagonal cross-ventilation matching the direction of summer winds.) Kitchen and living spaces are placed along the house’s northern face, to cool or shelter bedrooms from seasonal winds. Set within a larger structural frame, the initial construction allows for significant infill, almost tripling the home’s square footage— an expansion of significant value for areas where residences often include commercial or production spaces. Additional personalization occurs through finishes.

Notes: Equally addressing all sides of its urban condition, this project’s symmetrical plan results in a house with no clear front or back—that is, a house that presents itself as an object-in-the-round. The unit’s primary element is its simple structural frame, likewise symmetrical, that allows free infill. Never departing from its original unit dimensions, growth of this structural unit can occur in either a linear direction or as a gridded lattice. Devoting half of its footprint to outdoor spaces, this project is social to the extent it presents gardening, commercial activities, and residential programming on these patios to the public.

Project Details:
State: Estado de México
Municipality: Apaxco
Climate: Temperate
House Price: 195,301.97
Constructed Surface: 38.12 M2
Floor-to-ceiling height: 2.72 M
Roof Type: Flat
Orientation: NE–SE (Summer); E–W (Winter)
Growth Option(s): Horizontal
Wall Type: CMU (unfinished); Metal framed 8.9 cm Partition; Gypsum
Floor Type: Concrete Slab
Structure: Stone Foundation; Concrete Slab; 15×15 cm Concrete Columns; Reinforced Concrete Block, 12 x 20 x 40cm CMU; Reinforced Concrete Beams
Roofing: 20 cm Concrete Slab with Joists at 75 cm; 15 cm Polystyrene; Metal-mesh Reinforcement (Polished Finish)
Details: Water-collection System
Finishes: Exposed Concrete Block; Polished Concrete; Ceramic Tile

Project Credits:
Project: Apan Housing Laboratory
Architects: BGP Arquitectura

Upcoming Events

  • Design Smarter: Leveraging GIS, BIM, and Open Data for Better Site Selection & Collaboration

    Live Webinar

    Register for Free
  • Slate Reimagined: The Surprising Advantages of Slate Rainscreen Cladding

    Webinar

    Register Now
  • The State of Residential Design Today: Innovations and Insights from RADA-Winning Architects

    Webinar

    Register for Free
All Events