House 12, Apan Housing Laboratory

Project Details

Project Name
House 12, Apan Housing Laboratory
Location
ApanMexico
Project Scope
New Construction
Shared By
Madeleine D’Angelo
Project Status
Built

Project Description

This project is part of the Apan Housing Laboratory, which is featured in the August 2019 issue of ARCHITECT.

FROM THE ARCHITECTS:

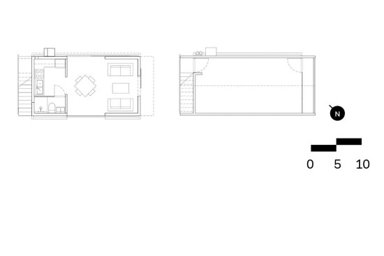
The system of this proposed house allows the adaptation of its interior layout toward the needs of any inhabitant family. The home’s most basic option would include standard services and programming—bedroom on the ground floor and a multipurpose space on the second. Building on this most basic plan, the second floor can adapt toward more specific programs. The exterior yard is delimited by a standard, modular fence that will fit within any regular grid. This fence works at the community scale, toward integration into rather than separation from surrounding constructions, by simultaneously creating individual green space and public areas with different morphologies or uses.

Notes: Surrounded by a circular fence, the proposed housing unit has no clear front. It’s primary element is its standard, typological shape—that of a generic house—that is extruded along the site’s width and raised one onesstory, CMU foundation walls. Absent a front and raised off the ground, the house presents itself as an clear, distinct object in the landscape. Oriented along perpendicular axes, clearly programmed ground-floor spaces physically connect to this landscape and encourage its cultivation while flexibly programmable second-floor open space offers expansive windows for viewing the surrounding landscape.

Project Details:
State: Tlaxcala
Municipality: Panotla
Climate: Temperate House
Price: 136,276.55
Constructed Surface: 53.00 M2
Floor-to-ceiling height: 2.3 M
Roof Type: Gable
Orientation: —
Growth Option(s): Hybrid
Wall Type: CMU Block and Reinforced Concrete
Floor Type: Reinforced
Concrete Structure: Reinforced Concrete
Roofing: Reinforced Concrete
Details: —
Finishes: Aluminum Door

Project Credits:
Project: Apan Housing Laboratory
Architect: Francisco Pardo Arquitecto

Upcoming Events

  • Design Smarter: Leveraging GIS, BIM, and Open Data for Better Site Selection & Collaboration

    Live Webinar

    Register for Free
  • Slate Reimagined: The Surprising Advantages of Slate Rainscreen Cladding

    Webinar

    Register Now
  • The State of Residential Design Today: Innovations and Insights from RADA-Winning Architects

    Webinar

    Register for Free
All Events