House 117

Project Details

Project Name
House 117
Location
San AntonioTX
Project Types
Single Family
Project Status
Built
Year Completed
2015
Size
4,500 ft²

Project Description

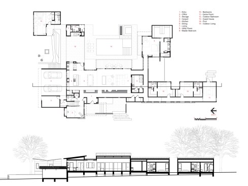
House 117 is a new home for a single father and 2 sons. Consisting of 4,500 sq. ft. the residence is designed to reflect the active lifestyle of the young family and their appreciation of the outdoors. Organized around a south east facing courtyard, the exterior living room works to channel the summer breezes through the shaded hammock room while offering connection to the pool and the sports court at the rear. The 3 bedroom home continuously offers views to the landscape and outdoor spaces while sheltering from the hot Texas summer sun. Upon arrival one enters the shaded west-facing courtyard while in a sequence the residence reveals itself given the option to continue toward the more public and or private areas of the residence. The central spine of cast in place reinforced concrete serves as a linear organizing element allowing the spaces to connect from and radiate beyond. The wood clad utility room serving as the core houses the utility, mechanical, data and audio equipment. The rear north facing attached carport is located 7 feet below finished floor of the residence. The roof of the carport is planted with native Texas grasses and serves as a visual landscape from within the kitchen and the outdoor living room. A small guest quarters / music room offers the occupants a secondary private space. The ensemble seeks to develop a relationship between interior and exterior spaces with a contemporary response to modern lifestyles.

Upcoming Events

  • Design Smarter: Leveraging GIS, BIM, and Open Data for Better Site Selection & Collaboration

    Live Webinar

    Register for Free
  • Slate Reimagined: The Surprising Advantages of Slate Rainscreen Cladding

    Webinar

    Register Now
  • The State of Residential Design Today: Innovations and Insights from RADA-Winning Architects

    Webinar

    Register for Free
All Events