Hotel 1301 Inn

Project Details

Project Name
Hotel 1301 Inn
Architect
ElasticoSPA +3
Project Types
Hospitality
Project Scope
New Construction
Shared By
Miabelle Salzano
Project Status
Built
Year Completed
2013
Size
37,500 ft²

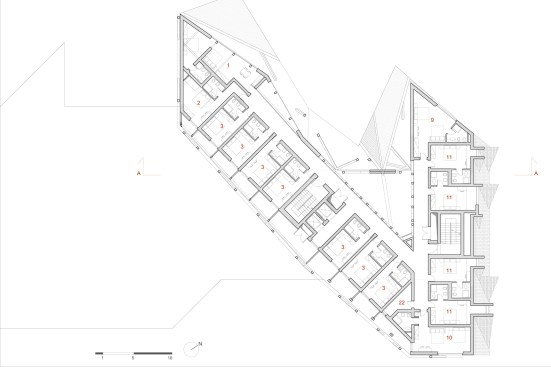
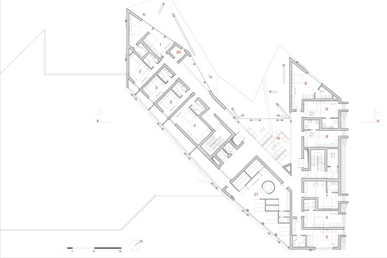
Project Description

FROM THE ARCHITECTS:

Hotel 1301 Inn sits in the mountainous region of Piancavallo, Italy, situated exactly 1301 meters above sea level. Stefano Pujatti, of ElasticoSPA +3, saw an opportunity to create a hotel as unique as the stay itself- serving as an escape to nature, it only felt right that the structure coexisted with environment's characteristics. Every detail on the hotel was created to serve as an extension to the surrounding area, respecting the environment in which it resides:

-The pointed windows mimic mountain peaks, pointed in a direction that best captures fresh snowfall.
-The shape allows ice to form, hanging from the roof as if frozen river water in the valley.
-The hotel is partially raised from the ground by three pillars, evoking the feeling of being in a treehouse, held up by the tree's branches.
-Characterized by the sharp profile of the Piancavallo mountains, guests are as close as can be to reconnecting with nature.

Upcoming Events

  • Slate Reimagined: The Surprising Advantages of Slate Rainscreen Cladding

    Webinar

    Register Now
  • The State of Residential Design Today: Innovations and Insights from RADA-Winning Architects

    Webinar

    Register for Free
  • Specifying Smarter with Copper-Clad Aluminum (CCA) Metal-Clad Cable

    Webinar

    Register for Free
All Events