Hopscotch House

Project Details

Project Name
Hopscotch House
Location
SaitamaJapan
Project Types
Project Scope
New Construction
Shared By
Miabelle Salzano
Project Status
Built
Year Completed
2017
Size
1,668 ft²
Team

Project Description

FROM THE ARCHITECTS:

This family who had lived individually decided to live together under one roof. In this project I tried to design a space that allowed these people who were used to living alone build an agreeable friendship by keeping a moderate distance from each other.

Caring for ease of access, a one-story house was requested. I thought hard about how to bring light and wind into the center of the house.

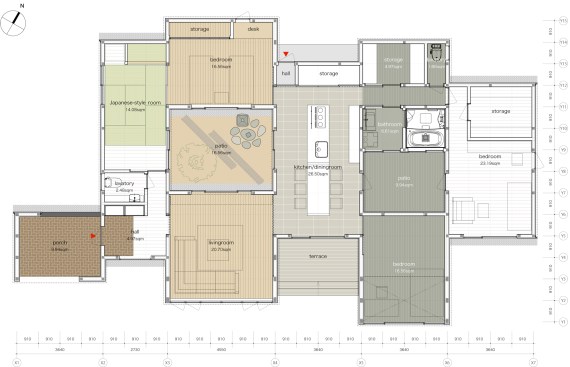
I divided the building into parts, each with their own function, and placed them in a layout “1+2+1+2+1” like Hopscotch game. By doing this, I led the house to the following solutions;

1. Since these divided parts were joined on each shifting position, with this train of spaces I could make some Waists (joining/dividing points) and some Pools (spaces with each function) in the house. When you make an excursion within the house, you can feel refreshing rhythms. And a resident can relax in a pool which was chosen while maintaining a distance from others.

2. The double position (split parts) created a patio which would bring light and wind into the center of the house.

3. Double spaces in this position (split parts) are also useful as corridors for connecting between single units. With this I could not only cut the space which would have been needed for corridors but also gave some opportunities to feel closer to others easily. It is important to measure the distance from others.

Upcoming Events

  • Design Smarter: Leveraging GIS, BIM, and Open Data for Better Site Selection & Collaboration

    Live Webinar

    Register for Free
  • Slate Reimagined: The Surprising Advantages of Slate Rainscreen Cladding

    Webinar

    Register Now
  • The State of Residential Design Today: Innovations and Insights from RADA-Winning Architects

    Webinar

    Register for Free
All Events