Hooper’s Island Residence

Project Details

Project Name
Hooper’s Island Residence
Project Types
Custom
Project Scope
New Construction
Shared By
Suren
Project Status
Built
Size
2,200 ft²

Project Description

2009 RADA

Custom / 3,500 Square Feet Or Less / Merit

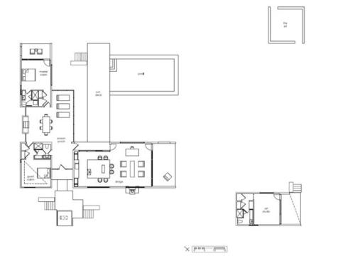
Local barns and fishing shacks inspired the simple volumes and minimally pitched shed roofs of this residence on Maryland’s Eastern Shore. Each pod—a lodge, master cabin, and guest cabana—is rotated toward a different river view and cantilevered over concrete plinths to minimize the footprint and satisfy floodplain zoning.

“This landscape is very much like the one I grew up in, and it gave me the opportunity to reacquaint myself with the negative space made by outbuildings, which allows the owners to be at one with nature,” says David Jameson, FAIA. The horizontal, lead-coated copper cladding also interacts with nature; its crimped seams create shadow lines when it’s sunny, and snowflakes rest there in winter.

The judges pronounced it “a beautiful composition, very handsome and skillfully done.”

Upcoming Events

  • Design Smarter: Leveraging GIS, BIM, and Open Data for Better Site Selection & Collaboration

    Live Webinar

    Register for Free
  • Slate Reimagined: The Surprising Advantages of Slate Rainscreen Cladding

    Webinar

    Register Now
  • The State of Residential Design Today: Innovations and Insights from RADA-Winning Architects

    Webinar

    Register for Free
All Events