Home for Life

Project Details

Project Name
Home for Life
Location
ChelmsfordMA
Project Types
Custom
Project Scope
Adaptive Reuse
Shared By
dmadsen
Project Status
Built
Size
1,768 ft²

Project Description

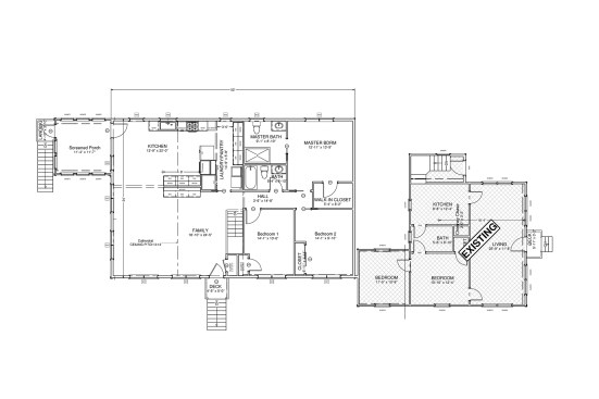
Home for Life – P-S Berube Construction Design Build

For this project, Certified Aging in Place Specialists P-S Berube Construction put an addition on a single family residence in Chelmsford, MA, converting the property into a two family home. The 1700 square foot addition created a living area to be inhabited by the property’s original owners, who wanted to remain in their home yet needed an adaptive design to address issues common to senior adults. The original 800 square foot property will be reused as a rental unit.

The forward-thinking addition created a fully functional, adaptive, single floor living area, featuring three bedrooms, master bath, kitchen, laundry and a screened-in porch. Completely barrier-free living is achieved with use of an open floor plan, 36 inch doorways, and flush thresholds between rooms. A roomy, walk in closet abuts the master bedroom, and the master bath incorporates a curbless, roll-in shower stall. Grab bars in the bathroom provide extra safety, and handle bars rather than knobs on the vanity are attractive and functional.

The kitchen uses a wall oven rather than a range, which eliminates the need for lifting or bending. Accessible cabinets feature easy to manipulate handle bars. All features are subtle in design, maintaining an aesthetically pleasing appearance.

One challenge we faced was in establishing a stair-free entry. The front portico deck measurements, approved by the town before we came on board, were not deep enough to accommodate mobility assistance apparatus. After discussions with the owner, we installed an internal stair lift to permit ease of entry throughout the years.

The original property maintained its original floor plan, but needed modernization. This included installation of energy efficient appliances and windows and bringing utilities up to code. The reuse of this property provides the homeowner with an additional stream of income.

Upcoming Events

  • Design Smarter: Leveraging GIS, BIM, and Open Data for Better Site Selection & Collaboration

    Live Webinar

    Register for Free
  • Slate Reimagined: The Surprising Advantages of Slate Rainscreen Cladding

    Webinar

    Register Now
  • The State of Residential Design Today: Innovations and Insights from RADA-Winning Architects

    Webinar

    Register for Free
All Events