The Hollyhock

Project Details

Project Name
The Hollyhock
Location
6115 E. Hollyhock St.PhoenixAZUSA85018
Project Types
Multifamily
Project Scope
New Construction
Shared By
Madeleine D’Angelo
Project Status
Built
Year Completed
2018
Style
Modern
Size
12,964 ft²
Certifications & Designations
Other
Team
Principal: Christopher Alt
Associate: Kelly Vanyo

Project Description

2020 RADA Winner
Multifamily Housing, Honorable Mention

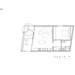
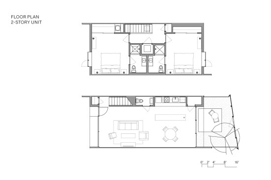
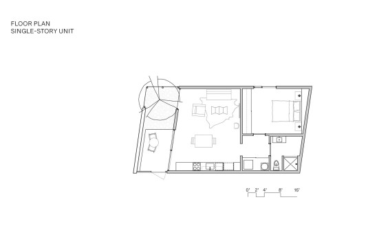
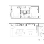
With the Hollyhock, an 11-unit development in Phoenix, local firm Studio Ma sought to bring the spirit of the Sonoran Desert to a low-cost housing scheme with an ecologically sensitive, community- focused design. The firm turned a seemingly straightforward brief into a model for urban living in a region where suburban sprawl has long been a pervasive problem. The townhouse-style buildings (nine are two stories and two are one story) are set back from the street in a gardenlike setting planted with palm and sage, with each building allotted its own pebble-strewn front yard and private terrace in the rear.

To mitigate another regional challenge—an overreliance on air conditioning—Studio Ma opted for ultrainsulating walls, keeping the buildings cooler in the day and warmer during the surprisingly brisk desert evenings. The design’s green features go further still, with electric-vehicle charging available in the adjacent parking area and high-efficiency water systems throughout. It’s all carried off with suitable aesthetic finesse, thanks to a regionally-inspired material palette of faded wood, faux stucco, and weathered metal, with creamy all-white fixtures and finishes inside. Even more remarkable, because of the architect’s budgetary pragmatism, the entire complex came in at a gross construction cost of scarcely $3 million, allowing the savings to be passed on to residents. The Hollyhock offers a glowing example of what sophisticated, high-density housing can look like.

PROJECT CREDITS
Project: The Hollyhock, Phoenix.
Client/Owner: Hollyhock Apartments, LLC
Architects: Studio Ma, Phoenix. Christopher Alt (principal), Christiana Moss, FAIA (principal), Kelly Vanyo (project manager)
Mechanical Engineer: Peterson Associates Consulting Engineers
Structural Engineer: Rudow + Berry
Electrical Engineer: Peterson Associates Consulting Engineers
Civil Engineer: Jacobs Wallace, LLC
General Contractor: Construction Zone
Landscape Architect: Colwell Shelor Landscape Architects, LLC
Lighting Designer: Peterson Associates Consulting Engineers
Size in Square Feet: 12,964 sf
Cost: $3M

MATERIALS AND SOURCES
Adhesives, Coatings and Sealants: Tiling: MAPEI
Appliances: Cooktop, Hood, Oven, Dishwasher, Refrigerator: GE, Smeg, Ikea, Summit
Bathroom Fixtures: American Standard, Ikea, Kohler
Carpet: Godfrey Hirst
Cabinets: Ikea, Mockett
Countertops: Abet Laminati
Exterior Wall Systems: Senergy, Clark Dietrich
Fabrics and Finishes: Kaiser Tile
Flooring: Mirage Flooring, Bostik, Carlisle
Gypsum: National Gypsum
HVAC: Trane, Broan, Price,
Insulation: Johns Manville, Owens Corning, Insulfoam
Kitchen fixtures: Elkay, Moen
Lighting Control Systems: Lutron
Lighting: DMF, Lithonia, Eureka, Jesco, Bega, Hydrel Windscape
Paints and Finishes: Dunn Edwards, Old Masters, Armstrong-Clark, Valspar, PPG, Deft
Plumbing and Water System: Bradford White, Amtrol
Roofing: Gaf
Site and Landscape Products: Hunter, Bowsmith, Febco
Windows and Doors: Western Window Systems, Arcadia, Velux, Trustile

Hollyhock is an urban infill project located in the Arcadia neighborhood in the foothills of Camelback Mountain, a prestigious area with notable homes by Frank Lloyd Wright and Al Beadle. The small density development provides 11 dwelling units with private gardens in one- and two-story apartments on a half-acre site. Outdoor commons, with benches and desert walkways, barbecue and deck areas and shaded parking are also included in the project. The 12,965 sf project is designed to weave into the existing neighborhood fabric with an economical construction approach to ensure the units will be attainable for many area residents. Unit sizes range from 700 to 1,280 square feet and are designed to accommodate young and mature professionals. The design takes its cues from the vernacular ranch house with a roof that orients the ridge to the building corners. The material palette includes glass in aluminum frames, exterior insulated finish system (EIFS), galvanized corrugated metal, kebonized natural wood, membrane roofing and exposed concrete floors. The new buildings are designed for energy efficiency and low water use while taking advantage of the region’s sunlight and prevailing breezes to boost comfort and reduce operating costs. Sustainable features include a high performance building envelope. Also included are Energy Star lighting and appliances, low water use fixtures, xeric and low water use landscaping.

Upcoming Events

  • Design Smarter: Leveraging GIS, BIM, and Open Data for Better Site Selection & Collaboration

    Live Webinar

    Register for Free
  • Slate Reimagined: The Surprising Advantages of Slate Rainscreen Cladding

    Webinar

    Register Now
  • The State of Residential Design Today: Innovations and Insights from RADA-Winning Architects

    Webinar

    Register for Free
All Events