Holly Hill

Project Details

Project Name
Holly Hill
Location
HartwellGA
Project Types
Single Family
Project Status
On the Boards/In Progress
Year Completed
2017
Size
4,400 ft²

Project Description

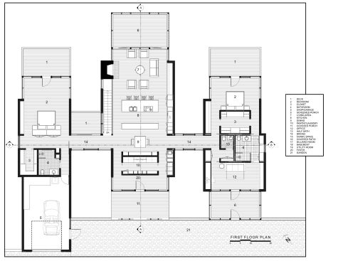
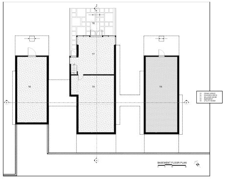
Holly Hill, the house, is named for the many American hollies on beautiful high piedmont land sloping dramatically to Lake Hartwell. Holly Hill, a retirement home for an architect and engineer whose hobbies, respectively, are gardening and classic cars, will be nestled into the site contours to maximize views of the lake and minimize impact on the site. Passive design features will include extensive eaves, sheltering porches and high albedo roofs as strategies for considerably reducing solar heat gain. Daylighting with clerestories and solar tubes reduce daytime lighting requirements. Ground source geothermal heat pumps ensure minimal space conditioning costs. Corten siding satisfies client requirements for low maintenance. The design team members anticipate achieving LEED Silver certification. The house is comprised of three wings joined by bridges: An architect’s wing with a porch facing a master garden, an engineer’s wing, which includes a car workshop, and a central activity, living, dining wing. Open and screened porches are strategically located to allow pleasant outdoor use at any time of day, particular season or, if necessary, insect challenge. Dramatic cantilevers allow the porches to project into the site’s beautiful mixed hardwood tree canopy.

Upcoming Events

  • Design Smarter: Leveraging GIS, BIM, and Open Data for Better Site Selection & Collaboration

    Live Webinar

    Register for Free
  • Slate Reimagined: The Surprising Advantages of Slate Rainscreen Cladding

    Webinar

    Register Now
  • The State of Residential Design Today: Innovations and Insights from RADA-Winning Architects

    Webinar

    Register for Free
All Events