Hodges University Fort Myers Campus Library Renovation

Project Details

Project Name
Hodges University Fort Myers Campus Library Renovation
Location
4501 Colonial BoulevardFort MyersFLUnited States
Project Types
Education
Shared By
MRBarchitect
Project Status
Built
Year Completed
2012
Size
7,400 ft²

Project Description

To visualize a library perhaps inspires images of large spacious rooms filled with stacks and stacks of books and adjoining reading areas, but in the twenty-first century, a university library is challenging that notion. The Hodges University Library located on the Fort Myers Campus faces a problem—the existing library is too small and no longer meets the needs of its growing student body. The recent completion of the neighboring classroom building provides for expanse of the current library across the existing hall into the adjoining rooms, but the biggest struggle is defining what best suites the students’ needs. For the architect, one of the biggest struggles in the program is the allocation of minimal area for book stacks–the primary resource of a library, but to properly program the Hodges’ library, it is required to truly understand the needs of its student body. The university’s students are typically not full-time students allocating full days to campus life. Instead, the Hodges’ student is typically a full-time employee and/or parent dedicating every “spare” minute to his/her studies. This lifestyle informs the role the library must play in the success of the students and the programmatic keys for the library: (1) provide access to electronic versions of resources, books, and study material; and (2) provide access to study areas that incorporate individual and group dynamics. The program, influenced by these factors, is further defined as follows: allow as much natural daylight into the space as possible; designate zones throughout the library for specific use; provide faculty/staff with full view of the library zones for better assistance; and maximize study spaces and computer access locations.

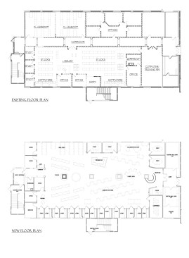
The floor plan is arranged with three basic zones: noisy, semi-noisy, and quiet. These zones proceed from front to back in a radiating pattern with the noisiest area located near the main entry. This zone includes an information desk for immediate instruction/direction (dialogue) and access to copy machines, staplers, hole punches, etc. The intermediate zone, or semi-noisy, represents about half of the open space and provides computer stations and configurable collaborative study areas. The quiet zone is located around the perimeter and back of the space and provides fully enclosed private study rooms, reading areas, and faculty offices. To identify the zones and maintain the open space, architectural ceiling details and lighting are utilized. Acoustical ceiling “clouds” are incorporated to help absorb noise, and pendant mounted lighting defines reading areas. The angled layout (visible in plan) of the computers and stacks are based upon the view cone from the center of the main entry. This pattern reinforces the cone of vision and utilizes perspective to cause the space to appear larger than it actually is. The individual study areas are privatized in fully enclosed, sound-attenuated rooms with windows in the doors and walls to provide visual oversight and allow natural light to permeate through the smaller study rooms into the large open space. The general lighting utilizes LED technology to provide ample lighting and reduced energy consumption and glare. The information desk is accentuated with its own architectural details (including an illuminated panel with the words “Ask A Librarian”) to emphasize its purpose of assistance. Floor space in the main area is maximized to provide as many computers as possible, and the study areas are created with four basic types: (1) individual, private; (2) group, private; (3) group, public/configurable; (4) individual/group, public, fixed. These types of study areas are intended to meet every possible need based upon student habit/preference.

Constrained by the existing building footprint and floors above, the ceiling height is limited in comparison to typical library spaces. Inspired by the picture of an open book on a table top, a center spine is created down the length of the library, which also serves a functional purpose by providing a centralized location to run mechanical ductwork, electrical conduit, and rerouted plumbing lines from above. By reducing the ceiling height in one centralized location and concentrating the services to that location, we are able to maximize the heights throughout the rest of the space.

The library opened in time for the beginning of the Summer 2012 semester and received quick praise by students and faculty–who were well acquainted with the previous library–for the successful solutions to meet the students’ needs.

Upcoming Events

  • Design Smarter: Leveraging GIS, BIM, and Open Data for Better Site Selection & Collaboration

    Live Webinar

    Register for Free
  • Slate Reimagined: The Surprising Advantages of Slate Rainscreen Cladding

    Webinar

    Register Now
  • The State of Residential Design Today: Innovations and Insights from RADA-Winning Architects

    Webinar

    Register for Free
All Events