HLW Confidential Staircase Project

Project Details

Project Name
HLW Confidential Staircase Project
Location
New YorkNew York
Project Types
Other
Project Scope
New Construction
Project Status
Built
Year Completed
2022
Size
680 ft²

Project Description

This project was selected as a Honor winner in ARCHITECT’s 2024 Architecture & Interiors Awards, Special Entry: Lighting Fixture within a Staircase category.

“A celebration of tectonics that introduces daylight to humanize the experience in what would otherwise have been a mundane stairwell.” –Juror Ben Crawford

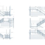
Part egress, part art installation, this 16-floor interior staircase by HLW took the place of what could have been a drab fire stair inserted in a former large-capacity elevator shaft of a renovated multimillion-square-foot building in New York City. To encourage occupants to traverse the stairs, the design team developed the central permanent installation called Light Fall, essentially a column of light extending from the roof to the ground level via 5,000 miles of aerospace-grade fiber optic strands arrayed around steel rings spaced 15 feet apart vertically, with the rings themselves suspended via four steel cables. The light source is actually sunlight, cleverly harvested using a roof system that, in turn, utilizes a rotating mechanism to direct the captured light into a mirror assembly, ultimately illuminating the fiber optics below.

Of course, safety precautions must be taken for a staircase spanning so many floors. A protective and opaque outer guardrail with a folded metal handrail therefore wraps around the stairwell, creating separation from the existing elevator shaft walls. Ambient lighting concealed within this handrail provides additional illumination for climbing and descending the steps without detracting from the special installation. The inner guardrail, on the other hand, is made with wire-mesh infill to create a nearly transparent barrier around Light Fall, ensuring visual continuity of the light sculpture. Another safety move, the stair runs articulate, which can help minimize vertigo sensation when looking over the rails. And finally, acoustic wall treatments throughout the stairwell soften the space while enabling people traveling up or down to converse simultaneously.

Project: Confidential Staircase Project
Location: New York
Client/Owner: Confidential

Architect: HLW

  • Principal in Charge: Susan Boyle, AIA, Managing Partner
  • Project Manager: Jane Cohen
  • Project Architect: Lee Devore, AIA, Principal
  • Project Designer: Suraj Bhatia
  • Job Captain: Brian Hopkins
  • Conceptual Design: Danny Rojas

Sculpture Design / Architect: Loisos + Ubbelohde

  • Designer: George Loisos, AIA, LEED AP, Principal/Owner
  • Core Team: Eduardo Pintos, Associate
  • Core Team: Susanna Douglas
  • Core Team: Susan Ubbelohde, LEED AP, Principal
  • Project Team: Alan DeMarche, Associate
  • Project Team: Steven Eichbaum, Fabrication Specialist

Construction End Date: October 2022
Interior Designer: HLW
Mechanical Engineer: Robert Derector Associates
Structural Engineer: Gilsanz Murray Steficek
Electrical Engineer: Robert Derector Associates
General Contractor: Talisen Construction Company
Lighting Designer: Lumen Architecture

Other consultants:

  • Starman Systems (telescope controls)
  • Optical Mechanics (optical design/ fabrication/assembly)
  • Displays and Optical Technologies (mirror fabrication)
  • Acoustical Consultant: Cerami Associates
  • Light Sculpture Structure Design: Mar Structural Design
  • Graphic & Signage Design: GHD Partners
  • Code Consultant: Milrose Consulting

Size in Square Feet: 11,000 sq ft
Cost: Confidential

MATERIALS AND SOURCES:

  • Cladding & Roofing: Alucobond (light cannon)
  • Telescope Glazing: Schott (Borofloat)
  • Glass: Pilkington Pyrostop
  • Acoustical System: Ecoustic by Instyle
  • Concrete: Davis Colors – Black Iron Oxide
  • Paints and Finishes: Mythic Paints, PPG Pure Performance 9-500
  • Windows and Doors: TPG Fire Frames

Upcoming Events

  • Design Smarter: Leveraging GIS, BIM, and Open Data for Better Site Selection & Collaboration

    Live Webinar

    Register for Free
  • Slate Reimagined: The Surprising Advantages of Slate Rainscreen Cladding

    Webinar

    Register Now
  • The State of Residential Design Today: Innovations and Insights from RADA-Winning Architects

    Webinar

    Register for Free
All Events