Hillside Residence

Project Details

Project Name
Hillside Residence
Location
AustinTX
Project Types
Project Scope
Renovation/Remodel
Shared By
dmadsen
Project Status
Built
Size
2,170 ft²

Project Description

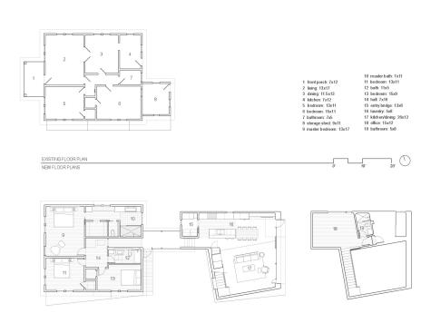
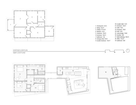
The Hillside Residence is a substantial renovation and expansion of a 1927 bungalow in Travis Heights. The existing 1,000 SF building was rescued from dilapidation, delineated abstractly in stark white, and connected via a glass entry bridge to a new 1,100 SF sculptural volume clad in black-stained cypress. Akin to Marcel Breuer’s 1943 proposition for a Bi-Nuclear House, the home is split into two zones – one for living and socializing, and the other for concentration, work and sleeping – and by virtue of entering in the middle, both sides appear to be in dialogue with one another. Inside, the two zones are defined by distinctly different material and spatial characteristics, the combination being both gracious and provocative.

The renovation respects the existing building’s disposition and maintains its collection of discrete rooms, while radically altering their character. A series of private rooms now take the place of what was public, and the front porch is removed, leaving the existing bungalow’s massing in tact but without any obvious way to enter from the street. This private nucleus is accessed through a new corridor that leads to an unexpectedly tall central space, off of which are arrayed the private rooms of the house. Unlike the traditional organization of the home, the expansion opens the public spaces to the backyard and, by contrast, is characterized by openness, dynamic spatial continuity, and abstraction.

An ultimately modern sensibility in the addition provides a counterpoint to the sense of contained space in the original house. As one passes between the old and new construction, the confluence of two distinct architectural characters gives rise to questions about the various ways in which architecture both challenges and reinforces the culture of which it is a part. The ensemble is a counter-proposal to the immodesties of urban transformation – where a new character replaces a `historically underutilized’ building stock. Here, the existing disposition of the street is maintained, albeit with a new temperament.

Upcoming Events

  • Design Smarter: Leveraging GIS, BIM, and Open Data for Better Site Selection & Collaboration

    Live Webinar

    Register for Free
  • Slate Reimagined: The Surprising Advantages of Slate Rainscreen Cladding

    Webinar

    Register Now
  • The State of Residential Design Today: Innovations and Insights from RADA-Winning Architects

    Webinar

    Register for Free
All Events