Highland Park Residence

Project Details

Project Name
Highland Park Residence
Project Types
Project Scope
New Construction
Shared By
Madeleine D’Angelo
Project Status
Built
Year Completed
2018
Size
12,398 ft²

Project Description

This project was selected as an Honor winner in the 2021 Residential Architect Design Awards, Custom House More Than 3,000 Square Feet category.

“If you’re going to design a super big house, make it gorgeously grand, fantastically executed, and in perfect, reciprocal balance with the landscape.” —Juror Matthew Bremer, AIA

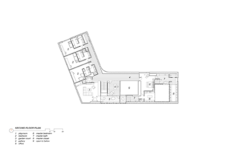
Into a typical sprawl-style lot, Austin, Texas–based Alterstudio has inserted a sleek two-story form that takes architectural issue with its more traditional Tudor mansion and French château neighbors. The boomerang-shaped floor plan of the 12,398-square-foot residence boldly defines a modern place of quiet repose. Its two stacked volumes are abstracted as a solid stone bar hovering above a glazed void, while the landscape extends the ground floor seamlessly across the site. Adding drama is a 35‑foot cantilever above the entrance to both the house and a structure that displays the clients’ art collection.

The minimalism of the overall forms is mitigated by contrasting textures and finishes: mill-finished steel against Indiana limestone panels, handmade Mexican tile and glazed volcanic stone juxtaposed with walnut casework and stainless-steel fixtures. The stone cladding the second story is set as stacked 3-, 6-, and 9-inch-wide vertical strips, offset in a staccato pattern to create shadows and textures. This pattern is repeated in the living room’s two-story fireplace, one of several moments where the architects carve into the upper volume to enhance the spatial experience of the main level.

PROJECT CREDITS:
Project: Highland Park Residence, Highland Park, Texas
Client: Alden and Janelle Pinnell
Architects: Alterstudio Architecture. Kevin Alter, Ernesto Cragnolino, Tim Whitehill, Michael Woodland, Jenna Dezinski
Architect of Record: Ernesto Cragnolino
Landscape Architect: Hocker Design Group
Interior Designer: SZPROJECTS
Structural Engineer: Ellinwood + Machado Structural Engineers
Mechanical Engineer: Positive Energy
Civil Engineer: Monk Consulting Engineers
Geotechnical Engineer: Hooper Group Inc.
General Contractor: Steven Hild Custom Builder
Lighting Designer: ELDS (Essential Light Design Studio LLC)
Audio/Visual: Brobus Technologies
Landscape Installation: Texas Land Care
Waterproofing: Wiss Janney Elstner Associates
Specifications: Introspec
Energy Compliance: Texas Home Energy Professionals
Size: 12,398 square feet

Materials and Sources:
Acoustical System: Sonos https://www.sonos.com/en-us/home
Adhesives/Coatings/Sealants: Tremco, Inc http://www.tremcosealants.com
Appliances: Subzero – Wolf https://www.subzero-wolf.com/, Miele https://www.mieleusa.com/, Best https://bestrangehoods.com/, LG https://www.lg.com/us/
Concrete: Reckli Formliner https://www.reckli.com/en/
Furniture: Espasso https://www.espasso.com/, B&B Italia https://www.bebitalia.com/en/, Suite NY https://www.suiteny.com/, Cassina https://www.cassina.com/it/en.html, Future Perfect https://www.thefutureperfect.com/, Artefacto https://www.artefacto.com/, Desire https://www.desiree.com/en, Apparattus https://apparatusstudio.com/, Oluce https://www.oluce.com/en/, Lightology https://www.lightology.com/, ABC Carpet https://www.abchome.com/, DWR https://www.dwr.com/ Blux https://www.grupoblux.com/en/, Dom https://www.dominteriors.com/, BD-Barcelona https://bdbarcelona.com/, Property Furniture https://propertyfurniture.com/, Future Perfect https://www.thefutureperfect.com/, Santa & Cole https://www.santacole.com/en/furniture/, Theater Seat Store https://www.theaterseatstore.com/, West NYC Home https://www.westnychome.com/, Minotti https://www.minotti.com/en, FLOS https://www.flos.com/, 1st dibs https://www.1stdibs.com/, Lobster Day http://www.lobstersday.com/en/, Dering Hall https://www.chairish.com/, Lumens https://www.lumens.com/, BDDW https://bddw.com/, Viesso https://viesso.com/
HVAC: Mitsubishi https://www.mitsubishicomfort.com/, Santa Fe https://www.santa-fe-products.com/
Insulation: Dow Chemical Co. http://dowbuildingmaterials.com, Demilec USA http://www.demilecusa.com
Lighting: Acuity Brands https://www.acuitybrands.com/, Delta Light https://www.deltalight.com/en, Juno https://juno.acuitybrands.com/, Luminii https://www.luminii.com/, Axis Lighting https://www.axislighting.com/, HE Williams https://www.hew.com/, Amerlux https://www.amerlux.com/, Phillips https://www.usa.lighting.philips.com/welcome, LF Illuminations https://lfillumination.com/, Cooper Lighting https://www.cooperlighting.com/global, Q-Tran https://www.q-tran.com/, Ecosense Lighting https://www.ecosenselighting.com/, MP Lighting https://www.mplighting.com/, Sistemalux https://www.sistemalux.com/, BK Lighting https://bklighting.com/, Performance in Lighting https://www.performanceinlighting.com/us/us/, ACDC Lighting https://www.acdclighting.com/, Lucifer Lighting Company https://www.luciferlighting.com/, USAI Lighting https://www.usailighting.com/, Lux R https://luxrled.com/, Inter-lux https://www.inter-lux.com/, Lumascape https://lumascape.com/, Bega https://www.bega-us.com/, Hess America https://www.hessamerica.com/Homepage/, Egoluce https://egoluce.com/index.php
Lighting Control Systems: Creston https://www.crestron.com/
Masonry/Stone: Prestige Stone https://bpiprestige.com/, Holland Marble Company, www.HollandMarble.com, Stone Source https://www.stonesource.com/, Iberia Tiles https://www.iberiatiles.com/, Metroquartz https://www.metroquartz.com/, Richlite https://www.richlite.com/, Ceramica Suro http://ceramicasuro.com/
Plumbing/Water System: Kohler https://www.us.kohler.com/us/, Dornbracht https://www.dornbracht.com/us, Toto https://www.totousa.com/, Blanco https://www.blanco.com/us-en/, Julien https://www.julien.ca/en/home/, Vola https://en.vola.com/, Infinity https://infinitydrain.com/, Brasstech https://www.brasstech.com/, Hansgrohe https://www.hansgrohe-usa.com/, Insinkerator https://insinkerator.emerson.com/en-us
Roofing: Sika Sarnafil, Inc https://usa.sika.com/sarnafil/
Windows/Curtainwalls/Doors: Western windows https://www.westernwindowsystems.com/ , Sky-Frame https://www.sky-frame.com/en/, Velux https://www.veluxusa.com/, Glazing Vision https://www.glassskylights.com/, Cory Worsham www.AlamoGlassCo.com

Upcoming Events

  • Future Place

    Irving, TX

    Register Now
  • Archtober Festival: Shared Spaces

    New York City, NY

    Register Now
  • Snag early-bird pricing to Multifamily Executive Conference

    Newport Beach, CA

    Register Now
All Events