Higashihongō House

Project Details

Project Name
Higashihongō House
Location
KawaguchiJAPAN
Architect
Roovice
Project Types
Single Family
Shared By
Roovice
Project Status
Built
Year Completed
2021
Team
Lead architect: Moe Watanabe

Project Description

Higashihongō is one of the neighbourhoods in the north side of Yokohama City. The development of the residential area began during the 1960s with a multitude of two-storeys houses. After opening the nearby train line, a rapid increase in population forced the administration to heavily invest on new housing construction using quick and cheap modular lightweight metal structures.

The result of it is an extended urban texture where every building is almost identical to the next one, and no real landmark stands out from the mass. The lack of exterior creativity induced the landowner to push the quality enhancement of the interior ambience.

Higashihongō House is part of this development and was originally built in 1981, sharing the same materials and size of the surrounding dwellings. Roovice completed its renovation, following the clients’ request to update the floor plan for fitting it more to their needs. In fact, the owners are a married couple who inherited the premises from the wife’s mother. Having the wife grown up in the house, the main intention was never to build anew, but to modernise the place while preserving the memories experienced inside.

At the same time, limited by the available budget, the project focused almost entirely on the living spaces accommodated in the first floor. For the bedrooms upstairs instead, the renovation relied solely on replacing the broken materials and some minor changes to the layout.

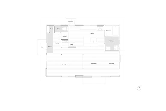
That being said, the first step was removing all the dividing walls to create a whole surface with a continuous flow. To expand the perceived space, the ceiling was also removed which highlighted the exposed primitive metal structure. The columns in the centre of the plan underwent the same process, previously hidden inside the partition wall and now working as a threshold between dining and guest room.

The entrance saw the doma increasing its size until reaching the north end of the house and converting its pavement with Oya stone tiles. The same tiles are also used for the added kitchen island placed in front of the dining room as a divider of the different spaces. A threshold in the ceiling surmounting the counter detaches even more evidently the kitchen from the continuous line composed of the guest-dining-living room.

Concluding the first floor, the washroom kept its dimension while being totally refurbished, and the existing openings were replaced with insulated windows to better cope with the winter season.

On the second floor, the main changes regarded the entrance doors of the bedrooms and the pavement. The formers are now combined with the closets’ sliding panels next to them, generating a single system of movable elements. For the latter instead, a new flooring made of wooden planks matches the plastered walls which reflect the generous amount of natural light inside. The two levels of the house now feature the same wooden pavement which generates a homogeneous calm yet bright atmosphere.

Upcoming Events

  • Design Smarter: Leveraging GIS, BIM, and Open Data for Better Site Selection & Collaboration

    Live Webinar

    Register for Free
  • Slate Reimagined: The Surprising Advantages of Slate Rainscreen Cladding

    Webinar

    Register Now
  • The State of Residential Design Today: Innovations and Insights from RADA-Winning Architects

    Webinar

    Register for Free
All Events