Hexoffice

Project Details

Project Name
Hexoffice
Location
IstanbulTURKEY
Architect
Slash Architects
Project Types
Office
Shared By
Slash Architects
Project Status
On the Boards/In Progress
Style
Modern
Team
Architect: Ipek Baycan
Architect: Sule Erturk Gaucher

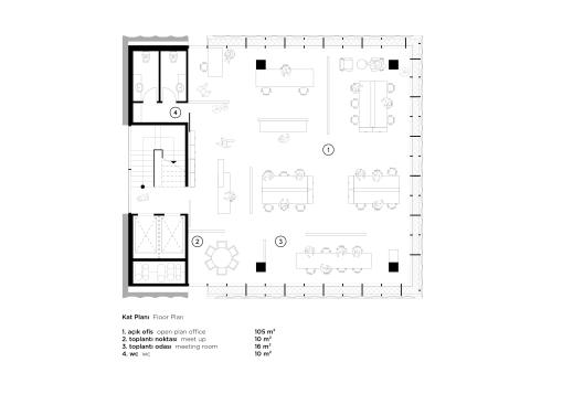
Project Description

The Hexoffice Building is situated in Gayrettepe, one of the developing business sites. The goal is to create an innovative A plus building in the existing building pattern of the area. The main approach to design the building aims to separate the circulation and office area both in terms of mass proportions and facade. The circulation and service areas of the building are situated on the west side by occupying as minimum space as possible and creating maximum space for the office usage. The building has double facade mesh which creates controlled lighting of the office areas whereas the circulation and service areas are closed with an opaque facade. The green terraces located in every floor of the building increases the happiness of the employees and tears the pattern of the facade.

Upcoming Events

  • Design Smarter: Leveraging GIS, BIM, and Open Data for Better Site Selection & Collaboration

    Live Webinar

    Register for Free
  • Slate Reimagined: The Surprising Advantages of Slate Rainscreen Cladding

    Webinar

    Register Now
  • The State of Residential Design Today: Innovations and Insights from RADA-Winning Architects

    Webinar

    Register for Free
All Events