HEPIstanbul Sales Offices

Project Details

Project Name
HEPIstanbul Sales Offices
Location
IstanbulTURKEY
Architect
CM Mimarlik
Project Types
Office
Shared By
cmmimarlik
Project Status
Built
Year Completed
2014
Style
Modern
Team
Design Team: Cem Sorguç
Design Team: Tolga Yağlı
Design Team: Ege Adaş
Design Team: Sezin Ergene
Design Team: Deniz Gezgin
Design Team: Amina Rezoug
Design Team: Tutku Sevinç
Design Team: Çiğdem Yalırsu
Design Team: Özlem Yılmaz

Project Description

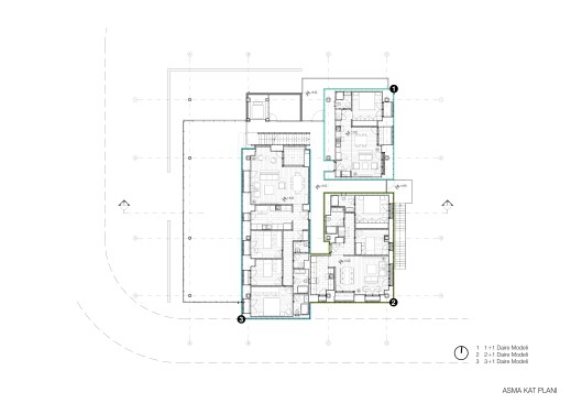
The Sales Office of HEPIstanbul, takes place in İstanbul Esenyurt housing area as the sales office which is designed by CM Mimarlık. The building maintains a familiar sales office procedure. It includes three independent residential mock ups that differ in scale and function.

There is a possibility that this building might be temporary in its location or it may be preserved within an other programme as well. Knowing this the building was designed to have a steel structure, that led to the constructive advantage of having an entrance space eight meters high. The mock ups take place on the 1st floor of the building which also includes a terrace to observe the on going phases of the construction site.

As an analogy between the main project, the entrance facade of the sales office welcomes visitors with a wall detached form the main glass facade.

Upcoming Events

  • Design Smarter: Leveraging GIS, BIM, and Open Data for Better Site Selection & Collaboration

    Live Webinar

    Register for Free
  • Slate Reimagined: The Surprising Advantages of Slate Rainscreen Cladding

    Webinar

    Register Now
  • The State of Residential Design Today: Innovations and Insights from RADA-Winning Architects

    Webinar

    Register for Free
All Events