Henry Moore Studios and Gardens

Project Details

Project Name
Henry Moore Studios and Gardens
Project Types
Cultural
Shared By
Ayda Ayoubi
Project Status
Built
Year Completed
2017
Size
12,206 ft²

Project Description

FROM THE ARCHITECTS:

The Henry Moore Foundation was founded by the artist and his family in 1977 to encourage public appreciation of the visual arts. The Foundation supports innovative sculpture projects through a global grants program, runs exhibitions and research worldwide, and conserves the legacy of Moore himself.

Despite careful preservation of landscape and buildings at Moore’s home at Perry Green in Hertfordshire, the Foundation’s activities had outgrown their facilities, which were in need of an overhaul. In 2007 the Foundation commissioned Hugh Broughton Architects to prepare a masterplan to create an improved visitor center, an enhanced archive and new sculpture stores. The brief demanded robust, economic and intelligent solutions with high levels of energy efficiency achieved with buildings which would be sympathetically integrated into the sensitive landscape of Moore’s estate. The first building, completed in September 2011, was a 1300 square meter blackened oak-clad store for sculptures in bronze, wood and plaster, tapestries and works on paper.

The second, larger phase of the masterplan comprises the redevelopment of the visitor center and offices, and creation of the archive. The brief for this second phase was based on the principle of re-use and extension of existing buildings, thereby minimizing impact on the estate and preserving the environment, which the Moores cherished.

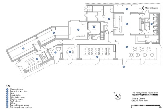
The existing offices, drawing and print stores had been housed in Danetree House since 1977. With expansion of the Foundation’s activities the offices had become too cramped. Visitor facilities were also inadequate. The shop and ticket sales were housed in the ground floor of a small terraced house overlooking the green and separated from Moore’s sculpture garden by a road. Food was sold from a small kiosk with visitors only able to sit at outdoor tables. There were no dedicated spaces for schools, and toilets were in poor condition.

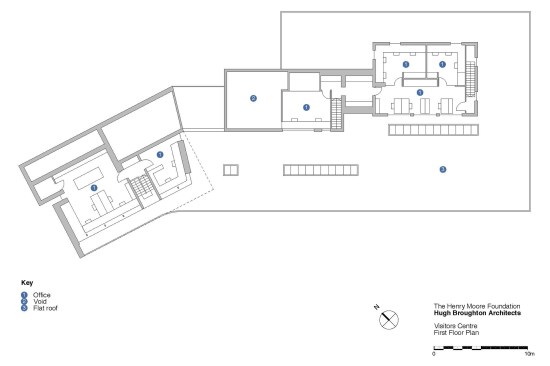
Danetree House has been fully re-purposed to accommodate environmentally controlled art stores, an art-handling workshop and offices for curators and administrators. The building has been extended to accommodate visitor facilities within a grey stained sweet chestnut and glass pavilion, which includes a new Interpretation Room for visiting school groups. The pavilion structure wraps around the north, east and south sides and doubles up with a sweeping curve to create the first floor offices of the curators. The building has been meticulously re-planned to ensure the separation of public and private functions, maintaining Henry Moore Foundation’s ‘Known Consignor’ status, which is critical to its international art handling operations. The transparent design maximizes views of Moore’s bronzes set in the gardens around his Grade II listed home.

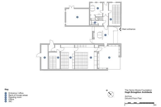
The library and archive of the Foundation are the world's leading resource on the life and work of Henry Moore, containing publications, correspondence, photographs and exhibition material. This peerless collection was housed in a former dwelling, which was in poor condition. The house has been fully refurbished, re-presented and substantially extended with a new monopitch wing clad in oxidized steel panels, selected to complement the woodland site. A timber lined reading room with a louvred corner window and a fully glazed entrance pavilion give glimpses of the activities within, and offer views out to the gardens which Moore so appreciated. Storage areas are fully compliant to national standards for the conservation of archive material.

The design of both buildings reinforces the relationship of the visitor with sculpture and landscape. The calm and sensitive architecture is characterized by natural materials, light and space. Details and workmanship reflect the Foundation’s commitment to craftsmanship.

Engineering systems have been sensitively integrated with the architecture, with a common plant solution shared between the two buildings, providing different environmental conditions on a demand-led basis. Sustainability underpins the design. Heating and cooling to both buildings is provided through a shared ground source heat pump with vertical boreholes in the gardens adjacent to the new archive. Projecting canopies to south facing elevations minimize heat gains and a natural ventilation strategy has been devised for all public and office areas.

Upcoming Events

  • Build-to-Rent Conference

    JW Marriott Phoenix Desert Ridge

    Register Now
  • Reimagining Sense of Place: Materiality, Spatial Form, and Connections to Nature

    Webinar

    Register for Free
  • Homes that Last: How Architects Are Designing a Resilient Future

    Webinar

    Register Now
All Events