Henry Island Guesthouse

Project Details

Project Name
Henry Island Guesthouse
Project Types
Single Family
Project Scope
New Construction
Shared By
Madeleine D’Angelo
Project Status
Built
Year Completed
2021
Size
1,348 ft²

Project Description

This project was selected as an Honor winner in the 2023 Residential Architect Design Awards, Custom Home / 3,000 Square Feet or Less category.

[The project does] just enough as the perfect balance of craft and utilitarian.” —Juror Maija Kreishman

A perennial favorite of RADA juries, Seattle-based firm Bohlin Cywinski Jackson makes the list again this year with its Henry Island Guesthouse—a clear and emphatic statement in the regional idiom of Pacific Northwest Modernism, carried off with the firm’s signature cosmopolitan grace.

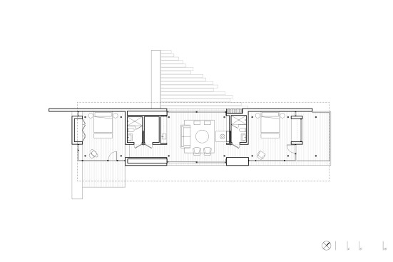
Set on the San Juan Islands off the coast of Washington state, the house’s isolated locale presented steep logistical challenges that were transformed by its designers into generative constraints. Deploying a limited palette of steel, Douglas fir, and glass, the team prefabricated the majority of the house’s components on the mainland and then transported them to the site. The simple materiality gives the final product a crisp, organic aesthetic that rhymes perfectly with its woody environs as well as the existing house on the property. Programmatically, the house doubles down on its connection to the landscape with a central living-dining room, situated directly between the two adjacent bedrooms and opening to the elements via oversize doors. The area functions as an ideal social space that leaves nothing between guests and the great outdoors but a couple of large insect screens.

PROJECT CREDITS
Project: Henry Island Guesthouse, Henry Island, Wash.
Architect(s): Bohlin Cywinski Jackson. Ray Calabro, FAIA, (Principal in Charge); Kyle Phillips, AIA (Project Manager); Adam Pazan, RA; Zachary Wignall (Architectural Staff)
Interior Designer: Bohlin Cywinski Jackson
Structural Engineer: PCS Structural Solutions
Civil Engineer: Pacific Surveying and Engineering
General Contractor: Hoxie Huggins Construction
Landscape Architect: Allworth Design
Geotechnical Engineer: PanGeo
Surveyor: San Juan Surveying
Archeologist: Cascadia Archaeology
Wetlands Delineation: Rozewood Environmental Services
Size: 1,348 square feet

MATERIALS AND SOURCES
Appliances: Bosch, True, LG, Stuv
Bathroom Fixtures: Kohler, Hansgrohe, Kartner, Infinity Drain, Toto
Cabinets: Douglas Fir custom wood cabinets
Ceilings: Douglas fir laminated wood beams
Concrete: Contractor self-performed
Countertops: Neolith, Pental
Exterior Wall Systems: Weathered Steel Panel, Western Red Cedar with Black Stain
Fabrics and Finishes: B&B Italia
Flooring: White Oak, Ipe, Pental Quartz
Furniture Vendor: Inform Interiors

Living Room
Sofa: Floyd-Hi by Living Divani
Armchairs: Embrace Lounge Chair & Footstool in oak with white oil finish and leather upholstery, by Carl Hansen & Son
Coffee table: white oak and blackened steel, custom designed by Bohlin Cywinski Jackson
Stools: Artek Aalto Stool 60 and EOOS for Carl Hansen & Sons, E016 Embrace
Floor Lamp: Noguchi Akari 14A
Rug: Wind Low Rug by Paola Lenti in Terracotta

East Bedroom
Bed: Sienna 216 bed by Naoto Fukasawa for B&B Italia
Rug: Wind Rug by Paola Lenti in Ottanio
Bench: Bertoia Bench, Harry Bertoia for Knoll
Floor Lamp: AJ by Arne Jacobsen for Louis Poulsen Lighting
Lounge Chair: CH25 by Carl Hansen & Son
Window seat: Custom Douglas fir seat designed by Bohlin Cywinski Jackson
Nightstand lamp: Jonas Wagell for DWR

West Bedroom
Bed: Sienna 216 bed by Naoto Fukasawa for B&B Italia
Side Tables: Embrace Lounge Table by Carl Hansen & Son
Bench: Bertoia Bench, Harry Bertoia for Knoll
Lounge Chair: CH07 Shell Chair, Hans Wegner for Carl Hansen & Son
Rug: Wind Rug by Paola Lenti in Foresta
Floor lamp: AJ Floor Lamp, Arne Jacobsen for Louis Poulsen Lighting

Glass: Cardinal
HVAC: Contractor self-performed
Insulation: Rockwool, Roxul
Kitchen fixtures: Julien (julien.ca), KWC
Lighting Control Systems: Lutron
Surface mounted downlights by Eaton
Linear LED accent lights by Senso and Aamsco
Interior recessed downlights by Visual Comfort & Co., Element
Metal: Exterior weathering steel panels; painted steel plate for exterior log storage
Paints and Finishes: Benjamin Moore, Sherwin Williams, Milesi, Tnemec, Cabot
Plumbing and Water System: Contractor self-performed
Roofing: NuRay Standing seam metal roof
Structural System: Laminated timber beams provided by Cascade Joinery
Wallcoverings: Heath Tile, Neolith
Windows and Doors: Windows and lift/slide doors by Quantum Windows & Doors

Upcoming Events

  • Future Place

    Irving, TX

    Register Now
  • Archtober Festival: Shared Spaces

    New York City, NY

    Register Now
  • Snag early-bird pricing to Multifamily Executive Conference

    Newport Beach, CA

    Register Now
All Events