Heavy Metal

Project Details

Project Name
Heavy Metal
Location
JoplinMO
Architect
Hufft
Project Types
Shared By
dmadsen
Project Status
Built
Size
6,840 ft²

Project Description

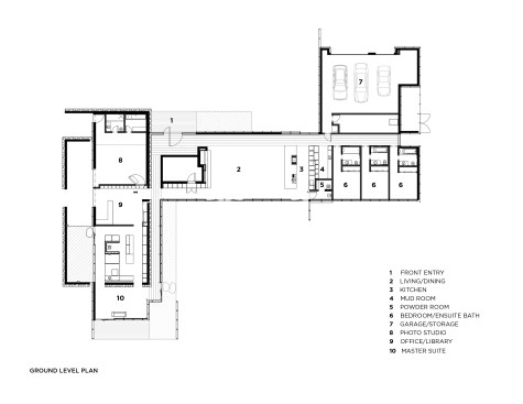
Aptly named, Heavy Metal is a steel-clad private residence sited on eight acres of heavily wooded terrain. The client owns a steel manufacturing facility, and he wished to have his home reflect both his family business and his personal artistic background. These desires became a critical component for the layout of the home. The residence was designed to be a single-level, gallery-like space in which the client could move easily—from home, to office, to studio—with strong connections to nature from each space.The perforation system was designed to accommodate sun shading, transparency, and privacy needs. The strategic layering of glass and perforated steel shades the interior of the home and provides views of landscape around it.

Upcoming Events

  • Build-to-Rent Conference

    JW Marriott Phoenix Desert Ridge

    Register Now
  • Reimagining Sense of Place: Materiality, Spatial Form, and Connections to Nature

    Webinar

    Register for Free
  • Homes that Last: How Architects Are Designing a Resilient Future

    Webinar

    Register Now
All Events