Heart of the Zoo Entry

Project Details

Project Name
Heart of the Zoo Entry
Location
13000 Zoo BoulevardApple ValleyMNUnited States55124
Project Types
Other
Shared By
dmadsen
Project Status
Built
Size
110,000 ft²

Project Description

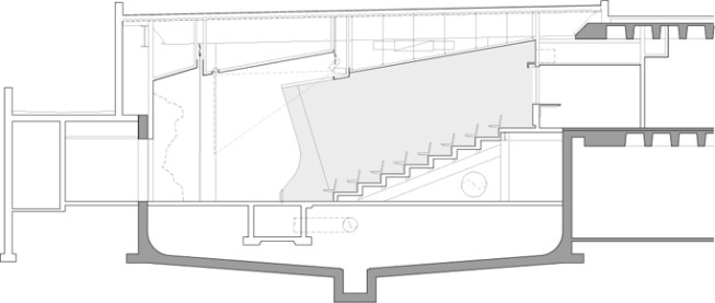
The Minnesota Zoo Entry Renovation includes three main components: The renovation of the Zoo’s main entrance (to be transformed in the future to a student/group entry for the Zoo’s Environmental Education Center), the renovation of the original indoor bird theater into a new Penguin Exhibit, and the renovation of an abandoned whale tank into a new Bird Theater. While modest in scope, the renovation creates a significant transformation to the zoo entry experience and is the first phase in a much larger “Heart of the Zoo” plan. When faced with significant budgetary constraints, the architects defined a “phase one” that softens the architecture at the entry and introduces a new Penguin Exhibit that utilizes existing space and will work with future Heart of the Zoo developments. Built 36 years ago, the Minnesota Zoo’s concrete architecture aligned with the concrete enclosures that typified exhibits of the era. Exhibit design today places greater emphasis on creating more natural and humane environments to the benefit of both animals and patrons. The renovation of the Zoo’s main entry exterior, in what will eventually become its Environmental Education Center, is intended to compliment and contrast the concrete used on surrounding buildings. Further, wood cladding, along with the introduction of a green roof, communicates the environmental stewardship key to the Zoo’s mission. An overall goal for the project was to create an architecture that works harmoniously with the landscape and existing context while emphasizing its role in supporting the new landscape and zoological exhibits. From an exhibit standpoint, the team focused on two primary areas: a tiered existing indoor theater and a whale tank that had been sitting abandoned for 15 years. The sectional qualities of both spaces were conducive to placing the new Penguin Exhibit in the existing theater location, and then creating a new theater into the abandoned whale tank. In both areas the architecture disappears as much as possibIe to focus attention on the animal exhibits.

Upcoming Events

  • Reimagining Sense of Place: Materiality, Spatial Form, and Connections to Nature

    Webinar

    Register for Free
  • Homes that Last: How Architects Are Designing a Resilient Future

    Webinar

    Register Now
All Events