Hartmann Residence

Project Details

Project Name
Hartmann Residence
Project Types
Custom
Project Scope
New Construction
Shared By
babaiah
Project Status
Built
Size
1,500 ft²
Room or Space
Other

Project Description

2004 RADA
Custom / 3,500 Square Feet Or Less / Grand
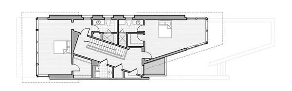
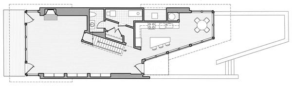
As is so often the case on a difficult site, this narrow lot inspired a cleverly designed house that makes the most of its footprint. Responding to the 40-foot-wide parcel and federal requirements for building in a wave zone, architect Roger Ferris raised the house on a concrete plinth, and he angled the walls to better capture sunlight and views. The front evokes the abstracted prow of a ship that’s slipped up from the sea. The roof is an inverted gable, a reference to all the gabled houses in the neighborhood. But from the water, it looks like a bird in flight. “There are an enormous number of seagulls on that part of Long Island Sound,” Ferris says. “That’s part of what cooked it up.”

The house’s strong rhythms and geometries serve practical purposes. Glazed walls are layered with cypress louvers, which veil the street facade from sun and traffic. Those on the rear corners add privacy from close neighbors. Ferris treated the sides of the house as a solid, stained cypress box with just a few punched openings. “We wanted to have a house with enough going for it visually at both ends without having to have the sides articulated with fenestration,” he says. The judges pronounced the project “gorgeous,” noting that its form reacts to a great many challenges.

Upcoming Events

  • Design Smarter: Leveraging GIS, BIM, and Open Data for Better Site Selection & Collaboration

    Live Webinar

    Register for Free
  • Slate Reimagined: The Surprising Advantages of Slate Rainscreen Cladding

    Webinar

    Register Now
  • The State of Residential Design Today: Innovations and Insights from RADA-Winning Architects

    Webinar

    Register for Free
All Events