Harpa–Reykjavik Concert Hall and Conference Centre

Project Details

Project Name
Harpa–Reykjavik Concert Hall and Conference Centre
Location
ReykjavikIceland
Project Types
Cultural
Shared By
Xululabs
Project Status
Built
Size
301,000 ft²

Project Description

When the Icelandic city of Reykjavik decided to trade relative isolation on the fringes of the Arctic Circle for greater visibility on the international scene, it turned to destination architecture to catch the public eye. Danish firm Henning Larsen Architects and Batteríið Architects created the Harpa—Reykjavik Concert Hall and Conference Centre, which opened in May, a 28,000-square-meter (301,000-square-foot) building situated on the edge of the North Atlantic Ocean to the northwest of Reykjavik’s center.

Harpa’s signature feature is its LED-lit façade, the design of which was led by Danish artist Olafur Eliasson in collaboration with Henning Larsen. “It’s unusual for an architect to work so closely with an artist on the signature part of a building, but we wanted an added dimension for this special project,” says Osbjorn Jacobsen, project design manager at Henning Larsen. Eliasson devised a compelling skin that spans the connected conference and concert hall volumes and creates a common language between them. Eliasson’s approach was to fashion a structural overlay of what he calls “quasi-bricks”: stacked geometric constructions of steel and glass designed to mirror the city, the light, and the changing weather in kaleidoscopic reflections inside the building. From the exterior, the geometric forms are reminiscent of the crystallized basalt columns commonly found in Iceland.

The different façades are made up of distinct variations of the quasi-brick. The south façade features 823 individually crafted 12-sided quasi-brick units, each “big enough to fit a human inside,” Eliasson says, while the remaining façades and the roof are made of sectionalized two-dimensional variants of this 12-sided geometric system, resulting in flat façades of five- and six-sided polygonal structural frames. In order to work out the fabrication and assembly of the quasi-bricks, Eliasson’s team (which included structural engineers) worked with 3D computer models, finite element modeling, various digital visualization techniques, as well as maquettes, models, and mock-ups. To solve the additional challenge of how the north and east sides of the façade would meet—sides that though emerging from a similar concept, are unrelated structurally—the team drew every corner by hand and designed each joint to accommodate a unique fit. The result “is like being inside a crystal,” says Sigurður Ragnarsson, Harpa’s chief engineer.

The studies that were carried out by the team on the movement of the sun and the Reykjavik light also influenced the spatial layout of the building inside the skin. The south façade is oriented toward the city, and the various types of clear, reflective, and colored glass employed in the quasi-bricks (see Toolbox, page 120) create a surface that reflects the clouds and sky in a way that turns weather into performance art. Inside the foyer, which runs along the building’s south edge, sunlight filtering through the façade throws light and color onto the floors, balconies, and the polished-steel ceiling.

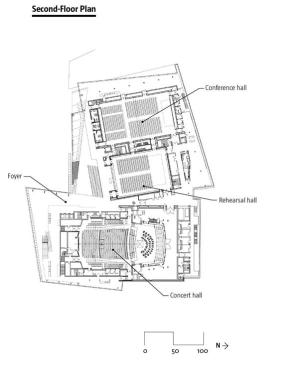
The vibrancy of the glass contraposes the monolithic inner volumes of the four halls, whose perimeter walls are pigmented black concrete, passively conserving warmth from the sun. The interior of the main concert hall, a 1,800-seat auditorium that is home to the Icelandic Opera and the Iceland Symphony Orchestra, is red—echoing the volcanic countryside. Vividly colored glass doors interrupt the serene black surfaces and open to meeting rooms, conference and rehearsal halls, and an exhibition area, where visitors are free to roam. The on-site amenities include shops, a restaurant, a viewing balcony and bar, a ground-floor bistro, and underground parking.

There is a dialogue between the building and the visitor, “similar to the interaction between art and spectator,” says Peer Teglgaard Jeppesen, principal architect at Henning Larsen. “The building itself poses a … question: What is art and what is architecture?”—a question that the city of Reykjavik hopes visitors will come to Harpa to answer.

Toolbox: Quasi-Brick Façade
There is more to Harpa’s varied façades than the complex geometry of the quasi-bricks. Artist Olafur Eliasson, who led the façade design, is known for lighting installations such as the New York City Waterfalls, which was on display on the East River in 2008. And while Harpa’s glass-and-steel quasi-bricks interact with Reykjavik’s sunlight, they do not go dark at night. There are more than 700 LED strip lights embedded in the building’s façade, each approximately 1.5 meters (4.6 feet) long. Each fixture is incorporated into a slim aluminum extrusion, specifically designed to match the geometry of its specific quasi-brick and mounted to the rear vertical profile of the steelwork. This placement avoids overwhelming people inside the foyer with too much light, while offering the best diffuse and indirect light distribution. The fixtures’ optics are composed of a series of filters, diffusers, and lenses and were developed for the project in collaboration with lighting manufacturer Zumtobel. There was no LED optic available at the time that gave a slim, even strip of light; this system has since been developed into a commercial product by Zumtobel.

Each fixture can produce a full spectrum of color using RGB LEDs; these are connected in vertical rows—slightly staggered, as there is no true vertical on the façade—with a maximum of 14 fixtures connected per circuit. Each strip light is individually addressable, meaning that the façade can be programmed—using the Ecue system—to create a color-changing light show.

There are 10 different types of glass used across all four of the building’s façades, including three dichroic colored glasses—yellow, green, and orange—which in turn reflect the colors blue, red, and purple. There is clear glass, antireflective glass, and five different types of reflective glass, each chosen for its different color tint or degree of reflectivity. The different types of glazing are arranged in groups to emphasize both the repetitive and modular aspects of the façade and its solidity, depth, and transparency.

The different types of glass are combined to create the different visual effects in the quasi-bricks of the south façade: For example, the antireflective glass, when paired with a clear glass behind it, creates a clear view line, but when paired with a reflective or dichroic glass, reflects a kaleidoscopic view of the interior. And when two reflective or dichroic glasses are paired on the front and rear of one quasi-brick, it brings the viewer’s attention to the module itself as a defined object in space. The team also considered sun angles, so that a brick that would appear solid in the morning might appear transparent during the course of the day due to the arrangement of reflective glass types. These pairings and groupings are distributed in a painterly fashion across the three-dimensional south façade; the various types of glass are likewise distributed across the two-dimensional north, east, and west façades.

The LED lighting interacts differently with each of the glazing types, and is uniformly deployed across them all. The programming for each light is on a 75-second loop and the lighting for each brick is the same—the start time, however, is staggered so that no two bricks are ever running exactly the same sequence. As the light fluctuates, the different optical effects of the façade are experienced. The lights come on at sunset, and during twilight, the intensity drops as the daylight fades. As viewers move past, the fading light gives each façade the appearance of constant change. “Because of this, the building does not appear a permanent or frozen setting,” Peer Teglgaard Jeppesen, principal architect at Henning Larsen, says, “but rather an active, dynamic figure reflecting the weather, the sun, the city, the people and the changes throughout the day and the year.”

Upcoming Events

  • Design Smarter: Leveraging GIS, BIM, and Open Data for Better Site Selection & Collaboration

    Live Webinar

    Register for Free
  • Slate Reimagined: The Surprising Advantages of Slate Rainscreen Cladding

    Webinar

    Register Now
  • The State of Residential Design Today: Innovations and Insights from RADA-Winning Architects

    Webinar

    Register for Free
All Events