Hanson Street

Project Details

Project Name
Hanson Street
Location
40 Hanson StreetBostonMAUnited States02116
Project Types
Shared By
Jeff157BKarch
Project Status
Built
Year Completed
1999
Size
700 ft²

Project Description

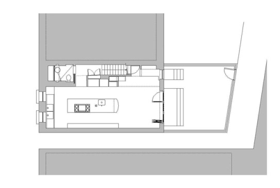
By reorienting from the street to the back, the basement level of this narrow row house in Boston’s South End becomes the ‘Garden level’. This simple but profound alteration is achieved by first, raising the rear yard from the sub-basement to an elevation closer to the kitchen – creating a bluestone dining terrace – and second, using according doors to make a large opening in the back wall axially related to the terrace. The kitchen itself, conceived of more as a social area than the domain of the lone cook, has a large table 13 feet long and 4 feet wide around which cooks and guests alike converse, observe or participate during the preparation of a meal. In order to withstand the vigorous cooking impulses of the client, the ‘furniture’, cabinets, table, counters, etc. were custom designed toe commercial standards.

Upcoming Events

  • Build-to-Rent Conference

    JW Marriott Phoenix Desert Ridge

    Register Now
  • Reimagining Sense of Place: Materiality, Spatial Form, and Connections to Nature

    Webinar

    Register for Free
  • Homes that Last: How Architects Are Designing a Resilient Future

    Webinar

    Register Now
All Events