Halo

Project Details

Project Name
Halo
Location
DublinOH
Architect
CO-G
Project Types
Healthcare
Project Scope
New Construction
Shared By
Madeleine D’Angelo
Project Status
On the Boards/In Progress

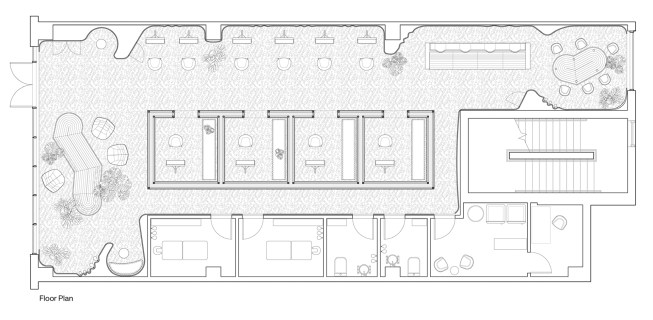
Project Description

FROM THE ARCHITECTS:

Halo operates as part salon, part clinic, part school, developed as a space for women and girls coping with cancer and the cosmetic effects of chemotherapy. A study in materiality, Halo is lavishly surficially adorned.

Project Credits:
Project: Halo
Architects: CO-G

Upcoming Events

  • Design Smarter: Leveraging GIS, BIM, and Open Data for Better Site Selection & Collaboration

    Live Webinar

    Register for Free
  • Slate Reimagined: The Surprising Advantages of Slate Rainscreen Cladding

    Webinar

    Register Now
  • The State of Residential Design Today: Innovations and Insights from RADA-Winning Architects

    Webinar

    Register for Free
All Events