Haapsalu Castle

Project Details

Project Name
Haapsalu Castle
Location
Lossiplats 3HaapsaluESTONIA90502
Architect
KAOS Architects
Shared By
Eliise
Project Status
Built
Year Completed
2019
Size
45,208 ft²
Team
Authors: Margit Argus, Margit Aule, Elo-Liina Kaivo, Laura Ojala
Landscape design: Kristiina Hellström

Project Description

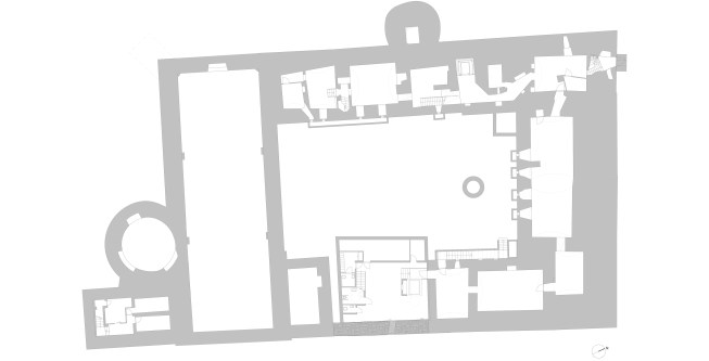
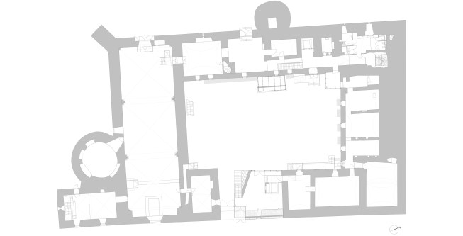
The long and colourful history of Haapsalu Castle began in the 13th century, when it was built. Since the 17th century the main castle has been in ruins.

Our conservation and renovation design has resulted in a journey along the walls and within the castle, inviting the guests to take a look at the castle structure and the picturesque town of Haapsalu from an unusual vantage point high above, and to experience the medieval environment from another level. The gardens on the roof terraces, the path floating along the walls and the elegant pavilion bring in freshness and provide an exciting synergy between the new and the old. The exhibition rooms inside the ruins are dark and massive. The new modern additions respect the past and assist present-day people in conceptualising it.

The pathway is like a flowing band, guiding the guest in a journey of impressions from the present and the past. Its bridge-like structure has been attached to the walls by means of steel cantilevers, which were placed so as to minimise any damage to the historical stonework. For example, we made use of wall parts that already had anchorage points for the roof structure, originating from the renovation in the 1990s, or attached the bridge to those parts that had already been reconstructed. For the bridge to be lightweight, the pathway was made of sheet steel.

The new entrance pavilion is a homage to the historical castle and almost appears to be peeking out curiously from behind the wall. This solution is also spatially justified: it connects different levels, ensuring access to the basement, ground level and the roof, thus serving as the beginning and end point of the journey. The floor of the pavilion is level with the ground in the courtyard; the exhibition in the basement floor and the personnel rooms are connected by stairs. The pavilion has an open-plan design and is well-lighted and easily accessible. The building has two entrances, one right near the castle entrance and the other for guiding guests into the courtyard.

This renovation has breathed new life into the castle ruins in the heart of the small seaside town of Haapsalu.

Upcoming Events

  • Slate Reimagined: The Surprising Advantages of Slate Rainscreen Cladding

    Webinar

    Register Now
  • The State of Residential Design Today: Innovations and Insights from RADA-Winning Architects

    Webinar

    Register for Free
  • Specifying Smarter with Copper-Clad Aluminum (CCA) Metal-Clad Cable

    Webinar

    Register for Free
All Events