Grey Matter | Louisville Children’s Museum Competition

Project Details

Project Name
Grey Matter | Louisville Children’s Museum Competition
Location
300 W BroadwayLouisvilleKYUSA40202
Architect
PLUS-SUM Studio
Project Types
Project Scope
New Construction
Shared By
Marty
Project Status
Concept Proposal
Year Completed
2014
Style
Size
1,250,000 ft²
Team
Design Director: Martin Summers
Project Designer: Hans Koesters

Project Description

Children are naturally curious, seeking opportunities to playfully explore while wondering about the magical possibilities of the world around them. Wonder and the process of discovery are fundamental to the mission of a children’s museum and our design strategy. We seek to engage the human minds potential via an innovative architectural expression that activates the senses, ignites imagination, and heightens anticipation of new discoveries revealed as you move through space. One oscillates between interior and exterior mental, physical, and conceptual limits.

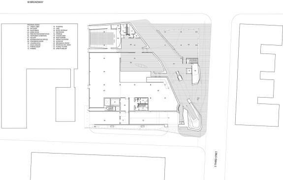
The competition brief called for an innovative project for a children’s museum, a new park (located diagonally across Third Street), and a new high-tech incubator office with adjoining parking garage. Our design sought to address crossing (implied by the competition brief) a potentially dangerous major thoroughfare where the primary users are families and groups of school children. This was our departure point for a more fluid sequence of spaces that challenged the traditional section of the city and used the entry sequence to take full advantage of the newly designed urban campus. The design blurs its site boundaries by developing the park as a conceptual and physical extension of the museum’s atrium/roof. We used the competitions urban campus goals to bring a larger civic idea to the site, the park system by Fredrick Law Olmstead that is a treasure and point of pride for Louisville’s citizens. The idea took a separation of vehicular and pedestrian traffic, used by Olmstead in his park designs, to address the campus connection between the parking garage and high tech office incubator building. This was achieved via the pocket park and below street entry path to the museum thus addressing safe access between them for children and large groups. The park and under street entry path also provide new curatorial opportunities and educational spaces using the city and landscape as interactive exhibits and extend the museum into the campus. The path leads to the main museum entrance stair connecting below grade parking to a street level urban lobby where entrances off Broadway and Third Street invite pedestrians to explore the interior.

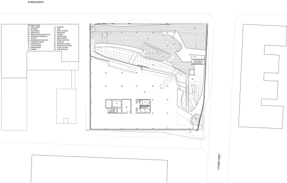
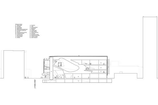
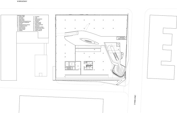
From the urban lobby you move upward through a sequence of spaces whose formation exhilarates and engages ones mind to wonder about what might be next. This sequence starts on an escalator at street level, ascending to a landing suspended within the main entry volume. You cross a glass floor where you see the main stair below. You now get a commanding view of the park to the South-East, making a visual link to the broader campus strategy. From here you take the second escalator, moving vertically through a thickened wall that connects the park to the roof through a fluid formal language. Before crossing this threshold, the wall reveals a skylight above that turns down to the left revealing an exhibit space, increasing the anticipation of what is to come. Once through the wall, the space expands in all directions producing a sense of vastness for children and adults. This sensation is re-enforced by the scale of the “cross-void” exhibit, depicting the Martian surface, reminding us that we occupy a small corner of the known universe. On the fourth floor you see Downtown Louisville through the windows beyond and have free public access to the roof terrace, the café, and the views of park and city before you ever have to purchase a ticket or enter the museum. After purchasing a ticket, you move through your first door into a small gallery before gradually descending via gentle ramps through the rest of the museum. The internal circulation is organized to maximize spatial variation by moving along, through, and across the major spaces connecting internal exhibits to the semi-external exhibit/public spaces. This continuous engagement with the atrium provides way finding for the building while also revealing the conditions that were curiosities before.

The street level program is organized so that the museum store, auditorium, and temporary exhibition gallery can be securely closed off from the rest of the museum outside typical hours of operation. The ability to segregate these spaces allows for special fundraising events or parties to take place in the unique urban lobby, atrium and roof deck now serving as pre-function or curated event spaces directly engaging the life of the city. From the temporary gallery you also get a view upward into the “cross-void” via a window at its base, further emphasizing the ideas of threshold, curiosity, anticipation and discovery.
The design leverages the internal and external environment revealing the urban context as an extension of the museums and its function. The plants and water feature of the park become exhibits of nature, while also passively cooling the site. This cool air is drawn through the under street entrance up through the atrium to windows along the west wall of the “cross-void” to evacuate the rising warm air. In colder months, the design collects warmer air in the upper atrium, producing a tempered zone where ticketing and entry occur. A large solar array on the south façade / roof is visible from the park, ticket counter skylight, and from the roof deck. Passive and active strategies, sustainable plantings, and integrated solar increase the overall sustainability and produce a museum that is itself a didactic exhibit.

Upcoming Events

  • Slate Reimagined: The Surprising Advantages of Slate Rainscreen Cladding

    Webinar

    Register Now
  • The State of Residential Design Today: Innovations and Insights from RADA-Winning Architects

    Webinar

    Register for Free
  • Specifying Smarter with Copper-Clad Aluminum (CCA) Metal-Clad Cable

    Webinar

    Register for Free
All Events