Grewal Residence

Project Details

Project Name
Grewal Residence
Architect
design21, LLC
Project Types
Project Scope
Renovation/Remodel
Shared By
dmadsen
Project Status
Built
Size
3,300 ft²

Project Description

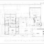
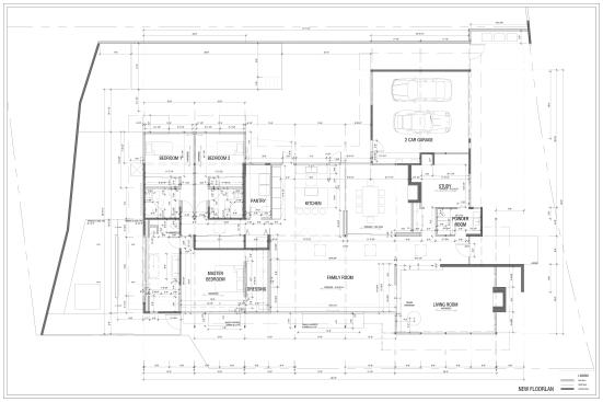
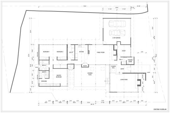
The presented residential project is a remodel of a mid-century post and beam residence originally built in 1962 in Pacific Palisades, CA

The main objective of the remodel was to maintain the beauty and simplicity of the post and beam design, not changing the roofline and work with the existing outline of the house and upgrade it with new building materials.

After extensive research about the residence, we were able relocate the original plans from 1962.

As a requirement by the City Guidelines, the additional cover square footage was limited to 500 sf, also the roofline could not be changed or raised.

We maintained the overall room organization in the house.
The kitchen was opened up with a direct view over the ocean as well as direct access to the backyard. Over the island an additional skylight was added to bring direct sunlight to the cooking area.

The master suite is located in the south-west corner of the house and has a big walk in closet as well as big sliding doors.
The master bathroom located on the Westside of the house has pocket sliding doors that open the bathroom up to an outside deck with a Jacuzzi.
The oversized shower has a simple floor to ceiling glass wall and big format tiles.

The living room, kitchen, dining room and entrance have a clean white tile and the formal living room has oak hardwood flooring.

As originally planned in 1962, a pool was added to the backyard.

The material selection for the remodel was kept to a minimum to emphasize the quality and beauty of the post and beam design.

Upcoming Events

  • Design Smarter: Leveraging GIS, BIM, and Open Data for Better Site Selection & Collaboration

    Live Webinar

    Register for Free
  • Slate Reimagined: The Surprising Advantages of Slate Rainscreen Cladding

    Webinar

    Register Now
  • The State of Residential Design Today: Innovations and Insights from RADA-Winning Architects

    Webinar

    Register for Free
All Events