Gregory House

Project Details

Project Name
Gregory House
Location
500 N. Dearborn StSuite 1050WilmetteIL60654
Project Types
Single Family
Project Scope
New Construction
Shared By
Searl Lamaster Howe
Project Status
Built

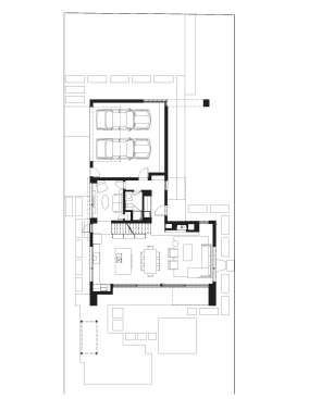
Project Description

The clients are avid horticulturists which led to a four year search for a site with ideal growing conditions. The design of this 2,100 square foot Wilmette house is a direct response to this passion. A 29-foot span of glass along the south side of the house opens directly onto the back garden. An extension of the house’s walls and roof shelters this façade from direct sunlight during the summer and neighbor views year round. Opening up the interior of the house as much as possible to the rear yard meant positioning the garage toward the street. The telltale garage volume is blurred by the extension of its street facing wall. The wall extension creates a gateway into an outdoor room/garden that expands the scale of the modest structure and further strengthens the relationship between inside and out.

Upcoming Events

  • Design Smarter: Leveraging GIS, BIM, and Open Data for Better Site Selection & Collaboration

    Live Webinar

    Register for Free
  • Slate Reimagined: The Surprising Advantages of Slate Rainscreen Cladding

    Webinar

    Register Now
  • The State of Residential Design Today: Innovations and Insights from RADA-Winning Architects

    Webinar

    Register for Free
All Events