Gregory

Project Details

Project Name
Gregory
Location
Banska BystricaSlovakia97401
Architect
DESIGNDEVELOP
Project Types
Other
Project Scope
New Construction
Shared By
Polo
Project Status
Student Work
Year Completed
2014

Project Description

Phenomenon of homelessness has became an intensly global question during past couple of decades. Finding solutions to it is a complex task which involves coordination of skills in socio-psychological and administrative fields – to name a few. Priority of the Gregory project is to find optimal alternatives for existentional questions of people without a home through the use of billboard objects and their advertisment spaces.

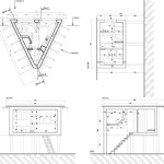
Cities are engulfed with rigid constructions for billboard advertisment which are expensive tu put up, maintain and their subsequent renting is a costly venture. The Gregory project brings optimalization to the construction of billboard structures in a way that the insides of these, after the extension, could be turned into a living space. Such an object would need just a minimal maintanance cost which could be partially paid through the rental of its advert space.

If we take the electricity cost needed for the billboard to keep it lit during night and we try to optimize it by x%, we find that this saved evergy could fully cover all those interier usage needs.

This study of Gregory project is based toward Republic of Slovakia, for the city of Banska Bystrica, where the project would be easy to implement thanks to existing energy and water grids. However the billboard housing project is possible to apply anyplace, althoug its implementation must be proceeded by a complex study involving the search for an adequate place for its physicall realisation.

Partner reciprocity is focused toward firms and investors which would participate in realisation or long term rental of involved advert space. They would be provided with a project logo, which they could place on their own companies web sites or other propagation materials with direct links to the whole project. The added value lies in an option to present ones company towards its peers as a place of social conciousness.

Gregory is meant as an “open source” initiative which is out there for interaction – (architects, designers, artists) who could come up with new consturction and layout alternatives and freely spread them further.

Project Gregory – billboard housing – is build as a non profit platform and it will be available for each city/space without the author claiming any financial benefits from its usage.

Upcoming Events

  • Build-to-Rent Conference

    JW Marriott Phoenix Desert Ridge

    Register Now
  • Reimagining Sense of Place: Materiality, Spatial Form, and Connections to Nature

    Webinar

    Register for Free
  • Homes that Last: How Architects Are Designing a Resilient Future

    Webinar

    Register Now
All Events