GREENWICH STREET LOFT

Project Details

Project Name
GREENWICH STREET LOFT
Location
Greenwich Street Project497 Greenwich StreetNew York City10013
Architect
Zerafa Studio llc
Project Types
Single Family
Project Scope
Interiors
Shared By
ZERAFA STUDIO LLC
Project Status
Built
Year Completed
2006
Style
Modern
Size
1,660 ft²
Team
Design Principal: Jason M Zerafa
Project Architect: Adam Felchner

Project Description

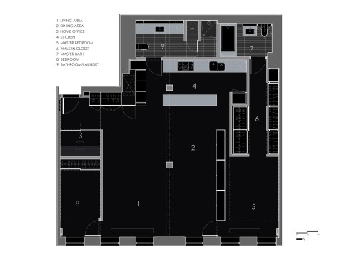
This project consisted of a full architectural and mechanical fit-out of a 1660 sf raw loft space in the Greenwich Street Project, a residential conversion of a 19th Century warehouse building on the western edge of SOHO.
Our design called for the installation of a museum quality interior with careful detailing and a thoughtful material selection that would retain the character and scale of the original space. Our desire to work within the existing timber structure dating from the late 19th Century with detailing requiring minimal construction tolerances was fundamental to this effort.

The individual living spaces are defined by a series of full-height partitions of different dimensions and materials that run perpendicular to the 40’ wall of west facing windows along Greenwich Street. In an effort to maximize natural access to daylight from the western exposure, the east-west orientation of the full-height walls insured that the abundant western light could penetrate the full depth of the space unobstructed. This idea was developed further in the separation of the main living space from the master bedroom. The full-height partition, in this case a custom cabinet wall in American black walnut, is pulled away from the adjacent closet walls to allow light to penetrate into the kitchen area through a low-iron glass infill panel. As a result, natural light surrounds the cabinet wall and expands the perceived limits of the primary living areas.

Extra tall pivot and sliding frameless doors extend from floor to ceiling to subtly suggest the limits of each room and maintain the continuity of space from room to room.
The large kitchen area layered in front of the service area, is only subtly separated from the main living space by a floating island with a 10’ long 3cm Cararra top, and features an 8’ tall pantry wall. The custom designed and fabricated kitchen cabinets are finished in white polyester lacquer and have integral reveal pulls and walnut laminate interiors.
The master bathroom, general bath/laundry room and mechanical space are located along the interior wall to consolidate services and wet walls. The bathroom interior walls and floors are clad in a custom cut Pietra Cardosa tile with honed finish. Cantilevered vanities in each bathroom feature walnut interiors, white lacquer finish on the exteriors and 3cm Cararra Gioia joint-less tops with honed finish.

In order provide central cooling and supplement the recessed fin tube heating system provided by the base building, the design discretely integrated an innovative high-velocity HVAC system, utilizing 2” flexible ductwork to preserve ceiling height. Custom floor grill panels were fabricated in white oak to match the flooring and provide a seamless floor surface over the fin tube openings.

Upcoming Events

  • Design Smarter: Leveraging GIS, BIM, and Open Data for Better Site Selection & Collaboration

    Live Webinar

    Register for Free
  • Slate Reimagined: The Surprising Advantages of Slate Rainscreen Cladding

    Webinar

    Register Now
  • The State of Residential Design Today: Innovations and Insights from RADA-Winning Architects

    Webinar

    Register for Free
All Events