Grand River Public Space

Project Details

Project Name
Grand River Public Space
Location
1953-1957 Grand River Ave.DetroitMIUSA48226
Architect
INFORM Studio
Project Scope
New Construction
Shared By
inFORM studio
Project Status
On the Boards/In Progress
Style
Modern
Size
3,800 ft²
Room or Space
Outdoor

Project Description

Detroit, Michigan
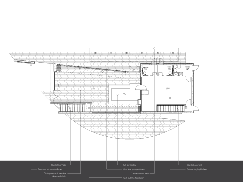
DTE Energy, one of the largest employers in Detroit, is playing a ground breaking role in the formation of a new public space on the fringe of their downtown campus which is intended to spur revitalization of the surrounding neighborhood. The proposed triangular–shaped public space lies one block to the east of the DTE Energy building, along Grand River Avenue in the heart of the city. In a collaborative effort with Living Lab, inFORM studio has provided full design services for the HUB, an on-site cafe | pavilion intended to form the catalytic heart of the park. Programmatically, the HUB will provide a full service kitchen, public restrooms, AV storage, bar area, balcony seating, a historical DTE narrative and a rooftop garden with provisions made to enclose seating for 150 people.

Three distinct concepts were created for the HUB building and one selected for inclusion into the overall master plan. The proposed public face of the HUB building aims to unify pedestrian circulation while creating an iconic wayfinding point within the park interior. The blackened steel and wood cladding pull from adjacent material palettes while an integrated Interactive Display System is optimized for augmented reality applications in which optical markers or real-life objects trigger information and accommodate an unlimited number of concurrent users with a high-tech LCD display. An EHTE (Extensible Hybrid Tracking Engine) is configured to capture reflections, passive ambient light and shadows between alternating frame rates. The tracking system can be used to see virtually anything placed on the display and visible with IR, tracking and passing information to applications through finger points, hands, objects (shapes) or optical markers. The high technology display system is intended to support and entertain patrons of the Grand River Public Space site.

Upcoming Events

  • Design Smarter: Leveraging GIS, BIM, and Open Data for Better Site Selection & Collaboration

    Live Webinar

    Register for Free
  • Slate Reimagined: The Surprising Advantages of Slate Rainscreen Cladding

    Webinar

    Register Now
  • The State of Residential Design Today: Innovations and Insights from RADA-Winning Architects

    Webinar

    Register for Free
All Events