gover street residence

Project Details

Project Name
gover street residence
Location
san carlosCA
Project Types
Project Scope
Renovation/Remodel
Shared By
dmadsen
Project Status
Built
Size
2,015 ft²

Project Description

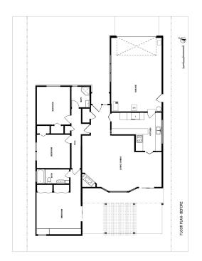
The main objectives of this project were to create a more functional kitchen and open the house up to the backyard, creating easy indoor/outdoor living. Other project requirements included a welcoming entry, an efficient heating system, a new powder room, a new laundry room and general modernization of the whole house. The owners wanted modern, but not too modern. The trick was to design a house with clean lines and a modern sensibility without going overboard and being too slick.

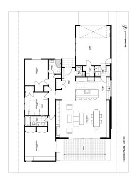
The project added eight feet onto the living/dining room and blew out the interior walls of the public portion of the house, creating a modern, open, comfortable living space, showcasing the kitchen and the talents of the cook. The eight-foot ceilings were removed and a new shed roof was added, opening up the living room to the rear yard view. A sixteen-foot wide sliding Fleetwood door and transom connects the space to the exterior, where an ipe deck and painted steel and wood trellis create a comfortable outdoor dining experience. The operable transom windows act as a chimney effect, ushering warmer air up and out of the house on warmer days. A skylight with a large canted shaft provides a similar effect in the kitchen and balances the natural light in the space. The large island separates the kitchen from the living/dining room and is anchored by a wood screen that helps define the entry and visually separates the kitchen from the bedroom wing and entry. A small powder room was added just off the entry and a functional bench/storage cabinet was created allowing a place for guests to remove shoes and the family to dump their daily stuff. Utility and laundry rooms were also created by stealing some garage space.

The renovation is a stunning transformation of a 60’s era builder house into a modern, custom home.

Upcoming Events

  • Design Smarter: Leveraging GIS, BIM, and Open Data for Better Site Selection & Collaboration

    Live Webinar

    Register for Free
  • Slate Reimagined: The Surprising Advantages of Slate Rainscreen Cladding

    Webinar

    Register Now
  • The State of Residential Design Today: Innovations and Insights from RADA-Winning Architects

    Webinar

    Register for Free
All Events