Goldring Centre for High Performance Sport

Project Details

Project Name
Goldring Centre for High Performance Sport
Project Scope
New Construction
Shared By
katie_gerfen
Project Status
Built
Size
140,000 ft²

Project Description

Text by Caia Hagel:

When Vancouver, British Columbia–based Patkau Architects and Toronto-based MacLennan Jaunkalns Miller Architects (MJMA) paired up to realize the glamorous new 140,000-square-foot Goldring Centre for High Performance Sport on the University of Toronto’s (UoT) downtown campus, each firm brought award-winning expertise to the table: Patkau’s in university work and MJMA’s in sports projects. Located among the elite cultural institutions on Toronto’s central and rarefied Bloor Street, Goldring brings a contemporary edge to the historic UoT campus—not just with its glowing glass façade but also with its concept of putting athletes on public view. “Goldring is a socially ambitious project,” says MJMA’s Ted Watson, noting that while Toronto is a sports-crazed city it’s not one where sweaty training rituals are often on display—certainly not down the street from the patrons of the Royal Conservatory of Music and the like. “This breaks with the tradition of the introverted sports facility,” says John Patkau, Hon. FAIA, lending the building a reality-TV edge.

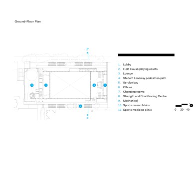
The vision for the voyeuristic facility stemmed from the fact that a full program of regulation basketball and volleyball courts, lobbies, training, and sports medicine facilities had to be stacked vertically to fit the compact urban site. First up, the courts: Moving the column-free Field House below grade meant that the north and south ends of the building had to support a 180-foot span using 23-foot-tall steel trusses. The two perimeter trusses, brought down to street level to connect to the cantilevered ground-floor slab, offer additional lateral support. The large steel trusses double as the cable-support for a high tensile glass wall, which adds stiffness to the entire structure.

And that’s where the voyeurism comes in: The east-side truss is left completely visible behind the cable-supported glazing, a transparency that allows the lobbies to look down into the basketball and volleyball courts, and gives the double-height Strength and Conditioning Centre a strong presence from the street. This visual showcase theatrically fulfills the objective of promoting health and wellness on campus.

“The primary functional spaces in the building feature large, clear areas of glazing to visually connect to the campus,” Patkau says, while more private areas such as faculty offices, research labs, and medical clinic have windows that are veiled by a perforated corrugated aluminum cladding that doubles as sunshading. “Language and design had to be reduced to their essentials because of a tight budget,” Watson says, but that wasn’t a hindrance. Rather, it was “something that let us play with different expectations of the sports facility.”

Project Credits
Project: Goldring Centre for High Performance Sport, Toronto
Client: University of Toronto
Design Architect: Patkau Architects, Vancouver, British Columbia . John Patkau, hon. FAIA, Patricia Patkau, hon. FAIA, Shane O’Neill, Mike Green, Etienne Lemay, Tyler Brown, James Eidse, Marc Holland, Dimitri Koubatis, Thomas Schroeder, David Shone, Luke Sterm, Michael Thorpe (project team)
Architect of Record: MacLennan Jaunkalns Miller Architects, Toronto . Ted Watson, David Miller, Andrew Filarski, Robert Allen, Viktors Jaunkalns, Aaron Letki, Miguel Fernandez de Aguirre, Kristin Beites, Timothy Belanger, Razmig Titizian, Tamara Hains
M/E Engineer: Smith + Andersen
Structural Engineer: Blackwell Engineering
Civil Engineer: EMC Group
Builder: EllisDon
Landscape Architect: Plant Architect
Size: 140,000 square feet
Cost: $59.2 million Canadian ($42.03 million U.S.)

Upcoming Events

  • Design Smarter: Leveraging GIS, BIM, and Open Data for Better Site Selection & Collaboration

    Live Webinar

    Register for Free
  • Slate Reimagined: The Surprising Advantages of Slate Rainscreen Cladding

    Webinar

    Register Now
  • The State of Residential Design Today: Innovations and Insights from RADA-Winning Architects

    Webinar

    Register for Free
All Events