Golden West College, Learning Resource Center

Project Details

Project Name
Golden West College, Learning Resource Center
Architect
Steinberg Hart
Project Types
Education
Shared By
Steinberg Hart
Project Status
Built
Year Completed
2011
Size
55,000 ft²
Team
President & CEO: David Hart
Design Director: Michael Miller

Project Description

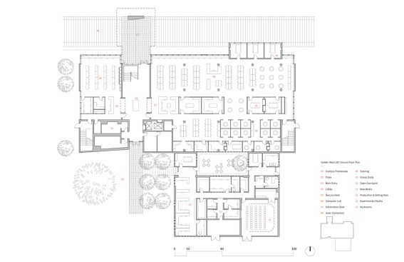
The Golden West College Learning Resource Center incorporates 50,000 SF of general collection space for approximately 65,000 volumes, an Information Commons for tutoring and instructional support, a New Media wing, and community-accessible spaces for meetings. This state-of-the-art facility consolidates campus resources, but also supports the learning process by providing increased computer access for both students and staff.

Working with College leadership, administrative staff, and building user groups, the project team completed program verification. The new facility is located at the west edge of campus, a site which was chosen for its prominence at the entry of the College and its potential to connect the institution with the Huntington Beach community. Orientation and layout of programmatic elements facilitates views to an adjacent California native garden and interaction with a primary pedestrian pathway that links students to the center of campus. Interior organization focuses on the juxtaposition of zones of quiet, contemplative spaces with collaborative and social areas.

Upcoming Events

  • Design Smarter: Leveraging GIS, BIM, and Open Data for Better Site Selection & Collaboration

    Live Webinar

    Register for Free
  • Slate Reimagined: The Surprising Advantages of Slate Rainscreen Cladding

    Webinar

    Register Now
  • The State of Residential Design Today: Innovations and Insights from RADA-Winning Architects

    Webinar

    Register for Free
All Events