Gokceada High School Campus

Project Details

Project Name
Gokceada High School Campus
Location
Gokceada, Turkey
Architect
PAB Architects
Project Types
Project Scope
New Construction
Shared By
sashaboglu
Project Status
Concept Proposal
Year Completed
2017
Size
193,750 ft²
Team

Project Description

FROM THE ARCHITECTS:

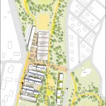
Gokceada is an island in Northern Aegean Sea with small scale masonry houses in organic urban patterns. As it is located on an island, the town is an isolated settlement with limited resources. Therefore the main aim of the Gokceada High School Campus—which includes a high school, vocational school, dormitory, gymnasium, library, and a conference hall—is to create an integrated life within educational-social entity of the school and urban life. The campus will not only be used during school hours, but it will remain accessible to the people of the island 24 hours a day as an open campus, with the intent of sharing limited resources efficiently.

Pedestrians first reach the campus square by walking along the school's front façade. The campus square and the buildings surrounding the library, conference hall, indoor and outdoor sports areas are easily accessible to townspeople. The square also leads you to the meadows and hobby gardens further ahead for outdoor recreational facilities. The project which was awarded with the 1st prize in the national architectural competition was mostly appraised by the jury for its open campus quality and integrated life proposal with the town.

The school buildings also propose an interactive learning environment. Especially the ground floor is transparent with an easy flow through courtyards, encouraging students to participate, be inquisitive and learn from each other. A passerby can listen to the melodies coming from the music room, or a student can observe artwork through the transparent glass façade. The learning environment becomes a versatile space, creating a sense of belonging.

The campus buildings, which will have a total of 18,000 m2 of gross floor area, are planned to be situated on the former building's footprints to preserve the existing trees and use the vast green, and open spaces of the campus.

This text has been edited for clarity.

Upcoming Events

  • Slate Reimagined: The Surprising Advantages of Slate Rainscreen Cladding

    Webinar

    Register Now
  • The State of Residential Design Today: Innovations and Insights from RADA-Winning Architects

    Webinar

    Register for Free
  • Specifying Smarter with Copper-Clad Aluminum (CCA) Metal-Clad Cable

    Webinar

    Register for Free
All Events