Gohar Khatoon Girls’ School

Project Details

Project Name
Gohar Khatoon Girls’ School
Project Types
Education
Project Scope
New Construction
Shared By
katie_gerfen
Project Status
Built
Year Completed
2015

Project Description

“A beautiful and restrained aesthetic that was achieved with limited means. This space communicates a new era for girls and women very powerfully.” —Jury statement

Beautiful and rich in culture, yet riven by years of ethnic and political conflict, Afghanistan has struggled to find its way since well before the United States invasion of the country in 2001. Among the most urgent priorities facing Afghans today is the issue of women’s education, a problem that prompted local leaders and an international nonprofit to enlist architect Robert Hull (the late founding partner of Seattle- and San Diego–based the Miller Hull Partnership) and the University of Washington’s Department of Architecture to design the Gohar Khatoon Girls’ School.

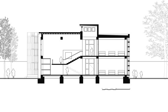
Located in the city of Mazar-i-Sharif, the capital of the northern province of Balkh, the building is a frankly stated ensemble in sable-toned brick, cut with windows that are outlined in vivid red, blue, and yellow frames, and set back on a plaza that can host schoolwide events as well as public functions. Its no-nonsense urbanism is tempered by a rustic simplicity in construction, including ceilings with exposed wooden trusses that soften the interior and recall traditional building techniques from the region.

In a country with a limited industrial capacity and spotty infrastructure, the simplicity and ingenuity of the design approach was also a practical necessity, but one that dovetails conveniently with Hull’s commitment to sustainability: The scant available resources all but required the designer to pursue the greatest possible economies in materials and energy consumption. Most importantly, what the Gohar Khatoon School does is project an image of strength, stability, and openness, declaring that the education of Afghan girls is—and should—be an integral part of the nation’s mission as it looks to live up to its nearly boundless promise.

Project Credits
Project: Gohar Khatoon Girls’ School
Client: Janet Wright Ketcham Foundation; Balkh Province Ministry of Education
Owner: Sahar Education
Architect: Robert Hull in collaboration with the University of Washington, Department of Architecture . Robert Hull (lead architect); Elizabeth Golden (project architect); Yasaman Esmaili, Christopher Garland, David Miller, FAIA (project team); Bryan Brooks, Marcus Crider, Grace Crofoot, Sarah Eddy, Yasaman Esmaili, Christopher Garland, Mariam Kamara, Michelle Kang, Kevin Lang, Carolyn Lacompte, Benjamin Maestas, Jaclyn Merlet, Holly Schwarz, Mazohra Thami, Andrew Thies, Mackenzie Waller, Patricia Wilhelm (research team) Mariam Kamara (systems research)
General Contractor: Jason Simmons (Afghanistan American Friendship Foundation), Sayed Ali Mortazavy, Hussain Ahmady, Farkhonda Rajaby, Airokhsh Faiz Qaisary
Structural/Civil Engineer: Solaiman Salahi
Daylighting: University of Washington Integrated Design Lab
Ventilation: PAE Engineers (ventilation);
Landscape: Jason Simmons in collaboration with the University of Washington design team
Size: 21,500 square feet (building), 43,000 square feet (site)

FROM THE AIA:

Located in Mazar-i-Sharif, Afghanistan’s fourth largest city, the Gohar Khatoon Girls’ School is an important urban center educating several thousand girls every day. Commissioned by the Balkh Province Ministry of Education, in partnership with a U.S.-based non-profit organization, the school is integrated into the national education system expanding Afghanistan’s push toward the development of women and girls and their contribution and inclusion within Afghan society. Gohar Khatoon supports this process by promoting stability, comfort, and community engagement and has become a model for other girls’ schools in the country.

FROM THE 2018 AIA INSTITUTE HONOR AWARDS FOR ARCHITECTURE JURY:

A beautiful and restrained aesthetic with limited means. Architecture is a modern take on Afghan history and masonry construction. This elevates respect for women and girls overall when state resources are used to this extent and design, adding an intent to create an urban oasis and promote community engagement. This space and the process communicates a new era for girls and women very powerfully. It is remarkably resourceful by integrating natural sustainability measures while operating within a weak infrastructure in the country.

Upcoming Events

  • Design Smarter: Leveraging GIS, BIM, and Open Data for Better Site Selection & Collaboration

    Live Webinar

    Register for Free
  • Slate Reimagined: The Surprising Advantages of Slate Rainscreen Cladding

    Webinar

    Register Now
  • The State of Residential Design Today: Innovations and Insights from RADA-Winning Architects

    Webinar

    Register for Free
All Events