Glenwood Remodel

Project Details

Project Name
Glenwood Remodel
Location
ChicagoILUSA
Project Types
Single Family
Shared By
VRadutny
Project Status
Built
Year Completed
2013
Team

Project Description

INTERIOR RENOVATION

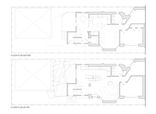
Throughout its lifespan, this 20th century Chicago greystone, had gone through various modifications, primarily at the rear, where the kitchen is located. This resulted in small, compartmentalized spaces that were dark, awkward and limiting in circulation. The client asked us to address these issues and to rethink the space so that it can easily absorb the daily family activities.

Through the removal of most of the interior walls and the strategic placement of the living elements, we created openness and added an abundance of natural light. In doing so, we formed opportunities for movement throughout the most active part of this home. To further underscore the circulation, emphasis was placed on the visual and physical connections between the newly-defined kitchen, dining and family areas. The result is a light, contemporary expression placed in subtle contrast to the rest of the home, marking a significant moment in the thoughtful evolution of its interior.

The second part of our involvement was to create a guest suite in the unfinished part of the basement. As with the renovation to the upper level, the theme of continuity persists. However, the individual challenges of this particular space resulted in a slightly different expression. In configuring the space, we worked around the existing structural elements, incorporating them into the project to every extent possible and finding design opportunities amidst the awkward quirks. The uneven foundation walls, sloping floors and old, painted beams were the catalysts for the precise solutions that now appear coordinated and well arranged. In this simple juxtaposition of materials, color and natural light, we were able to compliment the natural beauty of some of these hundred-year-old building components, making the newly created guest suite feel as an oasis from the rest of the home above.

EXTERIOR RENOVATION

The solution for the renovation of this small, narrow exterior space was to create a multifunctional outdoor room. To maximize the use of this tight area, a series of cascading landings were introduced to subtly separate the functions of outdoor eating, relaxation and play. From the inside of the house, the exterior room was designed to appear as an extension of the interior. As one steps outside, they are enveloped by the surrounding trellis. Its aluminum tubular structure further reinforces a sense of enclosure, complementing the geometric fanning of the stacking decks. Once the vining plants make their way up the diagonal guide wires, they will provide additional shade, offer greater privacy and enhance the experience via the aromas of the flowering plants.

Upcoming Events

  • Future Place

    Irving, TX

    Register Now
  • Archtober Festival: Shared Spaces

    New York City, NY

    Register Now
  • Snag early-bird pricing to Multifamily Executive Conference

    Newport Beach, CA

    Register Now
All Events