Glen Ellen Residence

Project Details

Project Name
Glen Ellen Residence
Location
Glen EllenCA
Project Types
Single Family
Project Status
Built
Year Completed
2016
Size
4,717 ft²

Project Description

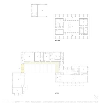
Located on a 10 acre vineyard and scrub oak site, this single family residence was designed to integrate the foundations and roof of a small existing house into the new architectural composition. Composed of three iconic metal-roofed gabled wings that are connected by an open cedar lined arcade and a steel and cedar trellis – the house and a new pool and landscape design define an outdoor courtyard that is planted with four high canopied trees that provide shade during the hot summer months. Alluding to the project’s modernist leanings, the free plan kitchen, dining, and living zone is contrasted spatially by the more cellular make up of the bedroom and garage wings, while the courtyard and a restrained palette of materials provide a sense of stasis for the project. Exacting craft and a sense of material richness which includes steel windows, painted, bleached and stained cedar, board formed concrete walls and blackened steel are evident throughout the project. Passive and active solar strategies, the re use of existing foundations and structure, the use of salvaged wood and sustainable products such as composite siding, metal roofing and clad windows and doors combine to create a maintenance free exterior and an environmentally responsible building.

Upcoming Events

  • Build-to-Rent Conference

    JW Marriott Phoenix Desert Ridge

    Register Now
  • Reimagining Sense of Place: Materiality, Spatial Form, and Connections to Nature

    Webinar

    Register for Free
  • Homes that Last: How Architects Are Designing a Resilient Future

    Webinar

    Register Now
All Events