Glebe House

Project Details

Project Name
Glebe House
Location
Oldtown, County Dublin, IrelandDublinIRELAND
Architect
DUA
Project Types
Single Family
Shared By
DUA
Project Status
Built
Year Completed
2021
Certifications & Designations
Other
Team
Designer: Darragh Brethnach
Designer: Joe Keohane
Ciaran: Molumby

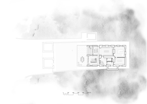
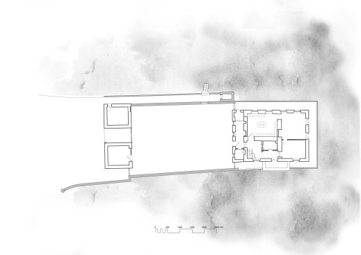
Project Description

This extension was born out of the need to get more natural
light into a dark and restricted kitchen. The existing lean to at the rear of the
Glebe House, blocked the potential for light to enter, closing of views of the
surrounding landscape and disconnection to the rear garden. To solve these
issues, the lean-to was removed, which opened up the back of the building to
penetrate light into the kitchen and entrance hallway as well as the addition of
a functional dining and living area that takes advantage of its positioning
relative to the sun. A simple charred timber structure houses the sunken down
extension, acting as a ribcage to the spaces inside. At the point of contact
between old and new, a glass rooflight runs the length of the extension to
mark this transition and to bring light deep into the plan. Te charred timber
complements the existing Glebe House and blends in with its context to
become almost unseen from side view. The rhythm of the columns is
maintained in the roof timbers and cladding to provide a defined view of the
extension on approach and from inside the house looking out. A white
bookcase continues the rhythm internally acting as a divider, breaking up the
spaces while still allowing light and visual connections to pass through.

Upcoming Events

  • Design Smarter: Leveraging GIS, BIM, and Open Data for Better Site Selection & Collaboration

    Live Webinar

    Register for Free
  • Slate Reimagined: The Surprising Advantages of Slate Rainscreen Cladding

    Webinar

    Register Now
  • The State of Residential Design Today: Innovations and Insights from RADA-Winning Architects

    Webinar

    Register for Free
All Events