Ghostline Kitchen

Project Details

Project Name
Ghostline Kitchen
Location
AustinTexas
Project Types
Hospitality
Project Scope
New Construction
Year Completed
2022
Size
17,468 ft²

Project Description

This project was selected as a Merit winner in ARCHITECT’s 2024 Architecture & Interiors Awards, Architecture: Hospitality category.

“It operates in a kind of shed vernacular, a typology we’ve seen a lot, but it’s a nicely executed project.” –Juror John Frane

Over the past 30 years, the “creative office” has thrived, highlighting the benefits of natural light, connection to nature, and human interaction. However, commercial kitchens have often been confined to windowless, smoke-filled spaces where chefs work in isolation. This project aims to transform the experience of culinary professionals by using architectural design to enhance well-being, sustainability, and community engagement.

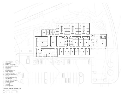
Located in an industrial neighborhood in South Austin, this prototype flagship facility represents a shift in the food industry. It offers an accessible and affordable space for chefs, bakers, restaurateurs, and food vendors, designed to inspire creativity, collaboration, and well-being. The project consists of two parts: a steel and glass coworking and lobby space filled with natural light and connected to outdoor areas and a community “fairground,” and production kitchens and warehouse spaces that balance efficiency, flexibility, and comfort. The result is a functional and adaptable building that supports idea-sharing and collaboration while keeping pace with industry trends and technologies.

The design process was highly collaborative, involving the client team, engineering consultants, kitchen experts, and city permitting office to ensure feasibility. The project evolved in response to the COVID-19 pandemic, which highlighted the importance of remote food preparation and delivery, elevating the facility to critical infrastructure status. The project’s goals expanded to address broader community service needs.

Traditionally, entering the food entrepreneurship industry requires significant risk and investment. Even relatively affordable options like food trucks have hidden costs and limitations. This project lowers the entry barrier by providing a code-compliant food preparation facility, making it accessible to a wider range of aspiring chefs and food makers.

Planned as the first of many locations, the facility’s success is measured through extensive post-occupancy evaluations. Tenants have responded positively, noting the value of a well-designed, daylit space—an uncommon feature in commercial kitchens. The building was fully leased before opening, with many tenants moving from competitor spaces in search of a better working environment.

Photography: Chase Daniel

Project: Ghostline Kitchens
Location: Austin, Texas
Client/Owner: Ghostline Kitchens

Architect:
A Parallel Architecture
Team: Eric Barth, AIA – Principal
Ryan Burke, AIA – Principal
Aaron Manns, AIA – Associate Architect
Construction Start Date: January 2020
Construction End Date: April 2022
Mechanical Engineer: AYS Engineering
Structural Engineer: Arch Consulting Engineers
Electrical Engineer: AYS Engineering
Civil Engineer: KBGE: A Part of Civil and Environmental Consultants
General Contractor: Capital Constructors Group
Landscape Architect: Benkendorfer + Associates
Geotechnical Engineer: ECS Southwest
Kitchen Consultant: GOTU Consulting
Size in Square Feet: 17,468 SF
Cost: Withheld

MATERIALS AND SOURCES:
Cleveland Range – https://www.clevelandrange.com/
True Manufacturing Co – https://www.truemfg.com/
Vollrath – https://www.vollrathfoodservice.com/
Southern Pride – https://www.southernpride.com/
Empire Bakery Equipment – https://www.empirebake.com/
Univex – https://www.univexcorp.com/
Kohler – https://www.kohler.com/en/products/commercial
Elkay – https://www.elkay.com/us/en.html
ASI Global Partitions – https://asi-globalpartitions.com/
Bobrick – https://www.bobrick.com/
Georgetown Woodworks – https://gtownww.com/
USG Ceiling Solutions – https://www.usg.com
Gold Bond Building Products – https://www.goldbondbuilding.com/
Concrete Formwork: Fitzgerald Formliners – https://formliners.com/
Metal Wall Panels: ATAS International – https://www.atas.com/
Daltile – https://www.daltile.com/
Kitchen Furniture: John Boos & Co. – https://www.johnboos.com/
Vitro – https://www.vitro.com/
USG Securock – https://www.usg.com
USG Sheetrock – https://www.usg.com
Titus – https://www.titus-hvac.com/
Owens Corning Thermafiber – https://www.owenscorning.com/en-us
Kitchen fixtures:
Ruvati – https://www.ruvati.com/
Elkay – https://www.elkay.com/us/en.html
Lighting Control Systems:
Acuity Controls – https://www.acuitybrands.com/products/controls
Nora Lighting – https://noralighting.com/
Lithonia – https://lithonia.acuitybrands.com/
Kelvix – https://www.kelvix.com/
Waveform Lighting – https://www.waveformlighting.com/
Alcon – https://www.alconlighting.com/
Masonry and Stone:
Custom Metal/Wood Fabrication: Against the Grain Custom Metal & Wood Fabrication – https://www.atgfabrications.com/
Paints and Finishes:
Ann Sacks – https://annsacks.kohler.com/
Daltile – https://www.daltile.com/
Schluter Systems – https://www.schluter.com/schluter-us/en_US/
Laticrete – https://www.laticrete.com/en
Surfacing Solutions – https://www.surfacingsolution.com/
Sherwin Williams – https://www.sherwin-williams.com/
Photovoltaics or other Renewables:
Water Heaters: Rheem – https://www.rheem.com/
Carlisle – https://www.carlisle.com/Home/default.aspx
Site and Landscape Products:
Koroseal – https://koroseal.com/
Storefront Windows: Tubelite – https://tubeliteusa.com/
Sliding Glass Partitions: Kawneer – https://www.kawneer.us/
Skylights: Vellux Commercial – https://commercial.veluxusa.com/
Overhead Doors: HAAS Door – https://www.haasdoor.com/

Upcoming Events

  • Design Smarter: Leveraging GIS, BIM, and Open Data for Better Site Selection & Collaboration

    Live Webinar

    Register for Free
  • Slate Reimagined: The Surprising Advantages of Slate Rainscreen Cladding

    Webinar

    Register Now
  • The State of Residential Design Today: Innovations and Insights from RADA-Winning Architects

    Webinar

    Register for Free
All Events