Ghana Agribusiness Knowledge Center

Project Details

Project Name
Ghana Agribusiness Knowledge Center
Project Scope
New Construction
Shared By
ORG Permanent Modernity
Project Status
Concept Proposal
Year Completed
2014
Size
26,910 ft²
Team

Project Description

The African Agribusiness Knowledge Center is part of a larger social vision and master plan, envisioned in collaboration with Alan Berger (PREX), for a 10,000 hectare (24,710 acres) site in the Afram Plains near Lake Volta, Ghana.

The project was awarded a 2016 Un-built Honor Award by the Boston Society of Architects.

MASTER PLAN

The masterplan is designed as a conceptual model demonstrating principles of design thinking that can be adapted to other sites in Africa with potential for agricultural development. The masterplan shows how agricultural operations and ecological operations can coexist with human settlement. The masterplan’s landscape components fulfill important sustainable farming and environmental objectives and add amenity and economic value. Human settlement components are organized as neighborhood districts closely linked to agriculture, related industries and infrastructure, making production and quality of life a central principle.

The Landscape portion of the plan focuses on four primary goals: pollution reduction, soil and water conservation, increased biodiversity, and the integration of recreation. Reducing pollution and conserving soil and water require capturing runoff that contains toxic chemicals and eroded soil particles. Alternating east-west Berm Spines and Swales are positioned between each pivot row. The water that drains into the spines irrigates new forests, which in turn prevent further soil erosion. The berm spines, besides conveying water, serve a second function, as roads to allow tractor access to the pivots. The water that drains into the swales, pass through the Wetland Finger Filters. Here, water is filtered before draining into Lake Volta. At the edges of the finger filters are recreational football fields which are integrated into the floodplains, coastal trails that link existing villages, and a buffer zone between the new settlement and coast that protects biodiversity.

Within the Knowledge Center District there are two additional major landscape features: the Shade Bosque and the Plot Park. The shade bosque is a promenade with multiple rows of trees which provide shade and pedestrian connections and other community programs. The plot park is a strip of agricultural land for student and faculty experimentation.

The density and layout of the pivots is in response to the contradictory desires to maximize agriculture (dense packing) and to maximize ecological effectiveness (sparse packing). A healthy 60m buffer zone between pivots enables the berm and swale spines and permits a total of 24 pivots on the site. Three wetland finger filters are proposed, which occupy a total of 48 hectares (3% of the watershed) to produce water treatment and biodiversity benefits without creating a significant area of seasonally barren land.

The various landscape components of the masterplan – including the Berm Spines, Swale Spines, and Wetland Finger Filters – work as a sustainable interconnected system which collect and treat runoff, trap eroded soil, re-establish vegetation and wildlife, create protective zones around the water bodies, and allow water re-use.

The proposed spatial scheme accommodates the existing settlement with a buffer zone for expansion around villages, followed by a transitional zone between villages and the new urban grid. These zones create a 3-band system which imprints social and economic mobility into the spatial strategy. New infrastructure connects these zones and incorporates existing settlements into new urban districts.

The overall design scheme incorporates four main districts. The districts provide a variety of densities and programs that could adapt and accommodate future growth. The four districts are defined as the Knowledge Center District, the Farmstead District, the Residential District, and the Industrial District. Each District includes an anchor building and civic landmark to trigger growth and expansion.

The Farmstead District consists of plots which house surrounding working families, and accommodate students graduating from the Knowledge Center in the development of their own farms. It follows the 60m grid dimension with a flexibility that allows for the plots to vary in length and composition. The Residential District also obeys the 60m grid, allowing for various building typologies and densities, and consistent communal spaces. The commercial and green strips provide recreational and logistical uses to residents and workers, with the Market Building acting as the central civic space.

The Industrial District is located with strategic points of access to the Logistics Road, effectively connecting it to farming facilities and the southern port.

The main infrastructure sets forth a hierarchy of movement corridors. The many routes create an efficient and variable network between each district and the masterplan as a whole. A main trunk line carries the bulk of goods traffic between the farm, the industrial district, and the port, with minimal overlaps with regular urban traffic. A commercial road runs parallel to the trunk line with regular connections, and terminates at a separate dedicated port in shallower water. A finer grained grid system is utilized in the development zones to allow for flexible growth as needed. The plan also proposes a coastal trail which connects different fishing villages along the lake and connects to the knowledge center hub and the local and commercial street system.

The Knowledge Center District marks the beginning of the masterplan strategy, with the Knowledge Center Building planned as a pilot initiative. The Knowledge Center Building will function as the starting point from which the urban grid will develop and serve as the main urban center connecting different users around the site. The Knowledge Center Campus is designed as a balance between the scalability of the MIT campus model, and the open space system of the University of Virginia campus model, with a grid of buildings and two civic strips – the recreational Shade Bosque strip and the educational Plot Park strip.

KNOWLEDGE CENTER BUILDING

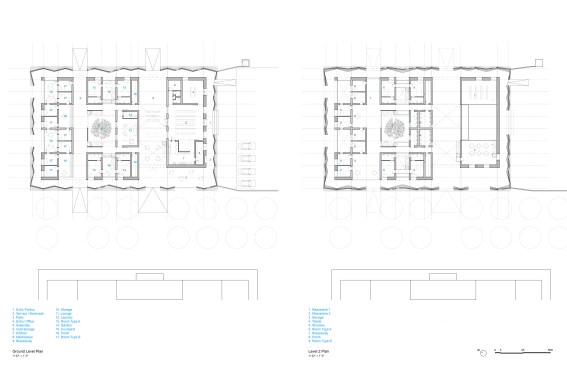
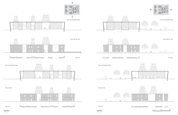
The Knowledge Center building is the pilot research and development facility designed to house 24 residents consisting of researchers, scientists, and guests; and common areas, including assembly rooms, offices, kitchen and dining, and recreational facilities (gardens, patio, soccer field, swimming pool). The architectural solution was informed by site specific material and construction techniques, the building program and location. The building is organized into zones with varying spatial and climate sensitive gradations: individual/ communal, small/ large, open/ closed, light/ dark. Every space or room is nested within a still larger space or room, with each transition between the layers serving a spatial and climatic purpose.

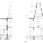
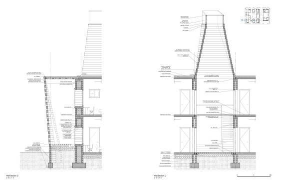
The outer skin, built from a “net” of concrete blocks is the first de¬marcation and separation from the landscape, and acts as a screen from direct light and rain. The outer skin also increases air pressure to draw breezes through the facility. The angular, hyperbolic façade and openings are carefully calibrated to the changing solar paths, balancing the needs for shading and views. Equatorial high noon sun shines on the north and south elevations for one half of each year. The solar strategy prevents low angle sun (6-9am & 3-6pm) from heating the thermal mass behind; while the angled roof overhang ensures that high angle sun (12pm) hits the ground before reaching the next layer.

The next layer is an 80cm thick load-bearing concrete block and rubble infill wall. Direct light rarely touches this layer, and its thick¬ness keeps the night-cooled interior air comfortable throughout the heat of the day. An insect net spans between the breaches in this layer making all outdoor “gardens”, “porches” and “breezeways” livable for an entire 24-hour period. All individual interior spaces open onto one of these shared and protected outdoor areas, many of which are capped by a giant pyramidal cone, further encouraging the prevailing winds to funnel through the shared outdoor areas as well as allow diffuse light to enter deep into the building footprint. The interiors are most removed from the climate, with each given a fan and a point-of-use air conditioner, a window for cross ventilation and a view looking to the landscape.

Upcoming Events

  • Build-to-Rent Conference

    JW Marriott Phoenix Desert Ridge

    Register Now
  • Reimagining Sense of Place: Materiality, Spatial Form, and Connections to Nature

    Webinar

    Register for Free
  • Homes that Last: How Architects Are Designing a Resilient Future

    Webinar

    Register Now
All Events