Georgetown

Project Details

Project Name
Georgetown
Location
BlufftonSC
Project Types
Shared By
dmadsen
Project Status
Built
Size
4,515 ft²

Project Description

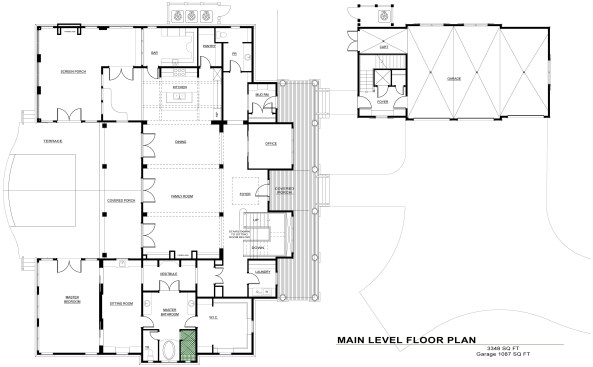
With porches on every side, the “Georgetown” was designed for functional indoor and outdoor living. Opening with a gracious, yet elegant entry, the views expand through to the mail level out to the water. The focal point was intentionally designed to allow the inhabitants and visitors alike to relax upon entering the home.

The home was designed in a traditional sense of a low country home with northeastern qualities to spin the local architectural vocabulary. Some of the more traditional low country elements included are the gracious porches to shade the interior for passive cooling, catering kitchen with a pass through for outdoor dining and two wings to encompass the patio to ensure privacy.
The neutral color palate selected for this home was intended to gently blend the interiors and exterior with the environment surrounding the home.

The main level of the home is characterized by wide open spaces, with connected kitchen, dining, and living areas, all leading onto the various outdoor patios. The main floor master bedroom occupies one entire wing of the home, along with an additional bedroom suite.
Although the home is large, a major effort went into designing the home to make every space special and interesting, including the sitting area under the stairs for an intimate getaway.

Upcoming Events

  • Design Smarter: Leveraging GIS, BIM, and Open Data for Better Site Selection & Collaboration

    Live Webinar

    Register for Free
  • Slate Reimagined: The Surprising Advantages of Slate Rainscreen Cladding

    Webinar

    Register Now
  • The State of Residential Design Today: Innovations and Insights from RADA-Winning Architects

    Webinar

    Register for Free
All Events