GEODE

Project Details

Project Name
GEODE
Location
228 cherry st.lafayetteLA70506
Project Types
Single Family
Shared By
emc arch
Project Status
Built
Year Completed
2021
Style
Modern
Size
1,455 ft²
Team
partner: ursula emery mcclure
partner: michael mcclure
partner: sarah young
intern: susie gottardi

Project Description

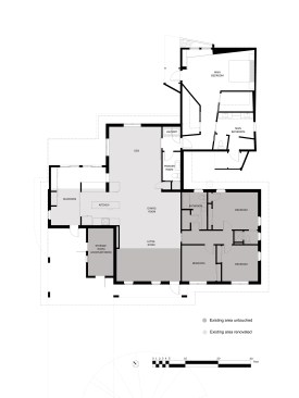
The GEODE creates a dramatic contrast in form, space, and organization from the existing 1950’s ranch house and the new main bedroom addition. The addition celebrates volume, height, and the contrast the vertical gives to the existing horizontal condition. The clients, a geologist and a graphic designer, requested an updated kitchen, a more open living space, and an additional main bedroom suite. Simultaneously, they requested the horizontal, dark, and low-slung existing space be opened. To create expansiveness, a bearing wall is replaced with a beam to allow for additional space for the renovated kitchen and main living area. The new opening also creates access and views to all of the public spaces and allows both existing and new glazed openings to cast their light deeper into the 50’s ranch. This light is cast even deeper with the use of a bright white material palate. The exterior presents a gradient shingle skin and a dark grey palate to create drama between the inside and the outside. To accentuate the drama between the interior, the addition is composed of faceted surfaces that bounce the light around relative to the dynamic interior of a geode. The existing renovated spaces are subdued, sunlit, and minimized to celebrate the owner’s extensive art collection.

Upcoming Events

  • Build-to-Rent Conference

    JW Marriott Phoenix Desert Ridge

    Register Now
  • Reimagining Sense of Place: Materiality, Spatial Form, and Connections to Nature

    Webinar

    Register for Free
  • Homes that Last: How Architects Are Designing a Resilient Future

    Webinar

    Register Now
All Events