Geffen Hall, David Geffen School of Medicine at UCLA

Project Details

Project Name
Geffen Hall, David Geffen School of Medicine at UCLA
Location
Los AngelesCA
Architect
SOM
Project Types
Education
Shared By
Sara Johnson
Project Status
Built
Year Completed
2016

Project Description

FROM THE ARCHITECTS:

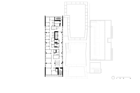
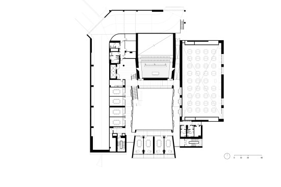
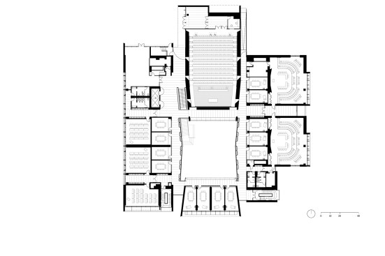
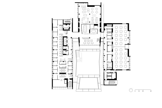
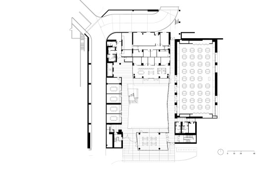
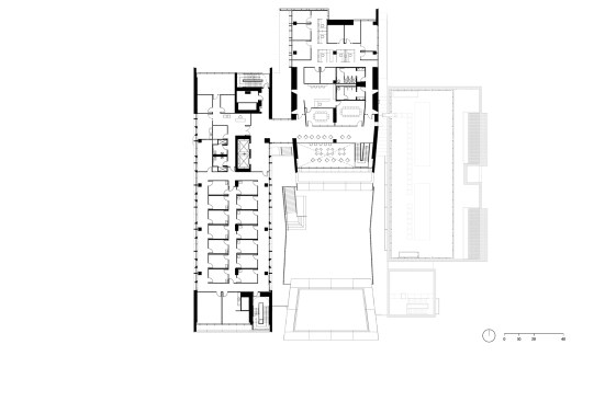
Located at the southeastern corner of the University of California, Los Angeles (UCLA) campus between the Center for Health Sciences and the neighboring Westwood community, Geffen Hall serves as a gateway for the David Geffen School of Medicine and the UCLA campus as a whole.

The 88,000 square foot, six-story teaching and learning facility incorporates planning and design that supports the most current technologies, innovative teaching styles, and greater connections between students, faculty, and the broader community. Geffen Hall is designed to provide sustainable environments and functional spaces for education, administration, socializing, and relaxation.

Upcoming Events

  • Slate Reimagined: The Surprising Advantages of Slate Rainscreen Cladding

    Webinar

    Register Now
  • The State of Residential Design Today: Innovations and Insights from RADA-Winning Architects

    Webinar

    Register for Free
  • Specifying Smarter with Copper-Clad Aluminum (CCA) Metal-Clad Cable

    Webinar

    Register for Free
All Events