Gatehouse Theater

Project Details

Project Name
Gatehouse Theater
Location
New YorkNYUSA
Architect
Studio DuBois
Shared By
ODA
Project Status
Built
Style
Historic
Room or Space
Architectural Detail

Project Description

“The historic Gatehouse, itself a national landmark and a fantastic part of the City’s heritage, is a fitting home for one of New York’s leading performing arts centers.”

New York City Mayor Michael R. Bloomberg

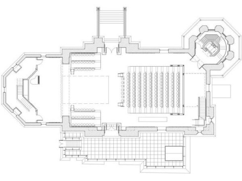
Starting with an abandoned, historic waterworks building from the 1890’s, we collaborated closely with this Harlem performing arts group to envision a new facility that includes a black box theater, changing and green rooms, offices and storage.

Moving from shared facilities into a new dedicated home was a big change for Harlem Stage and we spent a great deal of time exploring and planning how they could most effectively use their new spaces. Many options for the black box theater were considered in order to arrive at the best set of stage and seating arrangements. Adding onto the existing structure was necessary to provide storage space in close proximity to the performance space.

A new, much more accessible entry at a lower street level makes a gracious arrival sequence and allows good circulation down to coat rooms and restrooms and up to the performance space above.

Upcoming Events

  • Build-to-Rent Conference

    JW Marriott Phoenix Desert Ridge

    Register Now
  • Reimagining Sense of Place: Materiality, Spatial Form, and Connections to Nature

    Webinar

    Register for Free
  • Homes that Last: How Architects Are Designing a Resilient Future

    Webinar

    Register Now
All Events